Vente Appartement 34570, Pignan france 279 000 €
Descriptif du bien
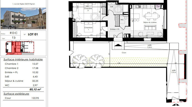
Iad France - Adrien Navarro vous propose : Au sein d'une superbe maison de maître, en plein cOEur du village de Pignan, pour les amateurs de vieilles pierres et d'histoire, ce grand T3 de 85 m² en rez-de-jardin avec plus de 3.5m de hauteur sous plafond ainsi qu'un magnifique extérieur de 123 m² exposé sud.
Ce bien dispose de 2 chambres spacieuses de 17 et 15 m².
Le bien sera livré avec le gros OEuvre terminé, façade, huisseries double vitrage bois, toiture.
Il ne vous reste qu'à personnaliser votre intérieur.
Pour cela, vous pouvez demander la réalisation des travaux suivant vos goûts, sols, climatisation gainable, peintures, salle d'eau. devis disponible.
Investissement locatif avec déficit foncier possible.
Vous disposez d'un local à vélo et pouvez acquérir 1 ou 2 stationnement selon vos besoins.
Vous bénéficierez de la garantie décennale.
La presente annonce immobiliere vise 1 lot situé dans une copropriété de 21 lots au total et ne faisant l'objet d'aucune procédure en cours citée à l'article L. 721-1 du code de la construction et de l'habitation. Montant moyen mensuel de charges déclaré par le vendeur : 0¤ par mois (soit 0 ¤ annuel). Honoraires d'agence à la charge du vendeur.
Bien non soumis au DPE. Les informations sur les risques auxquels ce bien est exposé, y compris l'obligation légale de débroussaillement, sont disponibles sur le site Géorisques : http://www.georisques.gouv.fr.
La présente annonce immobilière a été rédigée sous la responsabilité éditoriale de M Adrien Navarro mandataire indépendant en immobilier (sans détention de fonds), agent commercial de la SAS I@D France immatriculé au RSAC de MONTPELLIER sous le numéro 927590950, titulaire de la carte de démarchage immobilier pour le compte de la société I@D France SAS.
Informations LOI ALUR :
Soumis au régime de copropriété.
Nombre de lots : 21.
Honoraires charge vendeur. (gedeon_6727_30424756)



