Vente Appartement 68120, Pfastatt france 189 000 €
Descriptif du bien
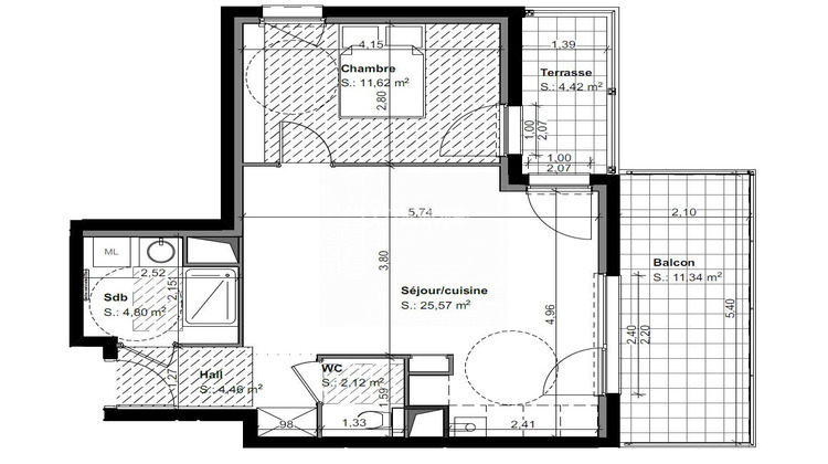
En EXCLUSIVITE, beau 2 pièces de 49 m² avec balcon+terrasse À vendre à PFASTATT
Situé dans un quartier pavillonnaire calme, au coeur du village de Pfastatt, cet appartement saura vous séduire par sa luminosité et son orientation, offrant une atmosphère chaleureuse et conviviale.
L'agencement a été pensé pour un maximum de confort.
Un hall d'entrée avec placard mural dessert un bel espace de vie de 26 m² comprenant la cuisine ouverte sur un grand séjour. Vous profiterez également d'un balcon de 11 m² parfait pour vos moments de détente en extérieur.
La partie nuit comprend une belle chambre de 12 m² avec un accès sur une petite terrasse, une salle d'eau entièrement équipée et un WC indépendant.
Prestations de qualité pour cet appartement :
- Plancher chauffant dans tout l'appartement,
- Volets roulants électriques dans toutes les pièces avec coffre intégré sous linteau (non apparent dans les pièces),
- Isolation thermique et accoustique renforcée,
- Carrelage 60X60 de chez FORGIARINI,
- Parquet stratifié pour la chambre,
- Fibre lisse aux murs,
- Salle de bain équipée : faïence toute hauteur sur les 4 murs, receveur extra plat, meuble avec tiroirs et vasque, miroir et spot led, sèche-serviette à lames plates pour compléter le plancher chauffant,
- WC suspendus séparés,
- Belles finitions avec dalles sur plot en grès Cérame sur le balcon et la terrasse,
- Aucun seuil pour sortir sur le balcon et directement accessible pour les personnes à mobilité réduite (PMR),
- Sécurisation de la résidence via un videophone,
- Portes palières blindées,
- Espaces verts aménagés et agrémentés,
- Parties communes soignées by GLD PROMOTION.
- Place de stationnement extérieure privative
- Local à vélos en rez-de-chaussée
Idéalement située, la résidence ' Bois doré ' se trouve à 5 minutes de Mulhouse, 25 minutes de Colmar et 35 minutes de Bâle, avec un accès rapide aux autoroutes.
Pfastatt est une commune agréable et dynamique, offrant toutes les commodités à proximité : écoles (de la maternelle au lycée), crèches, périscolaire, associations sportives, commerces, supermarché, restaurants et boulangeries.
Proximité : Mulhouse, Lutterbach, Wittelsheim, Richwiller, Kingersheim, Dornach...
Prix de vente : 189 000
Pas de frais d'agence.
Photos non contractuelles.
Vous souhaitez davantage de renseignements ?
Honoraires à la charge du vendeur. Dans une copropriété de 12 lots. Aucune procédure n'est en cours. Classe énergie C, Classe climat C Montant moyen estimé des dépenses annuelles d'énergie pour un usage standard, établi à partir des prix de l'énergie de l'année 2023 : entre 532.00 et 719.00 . Les informations sur les risques auxquels ce bien est exposé sont disponibles sur le site Géorisques : georisques.gouv.fr.
Retrouvez l'annonce de l'agence immobilière LUTIMMO sur : https://www.lutimmo.fr/ref/VA3032
- Type de bien : Appartement
- DPE : C - 91 à 150 kWh/².an
- GES : C - 11 à 20 kg eq CO2/².an
- Surface : 48 m²
- Localisation : France - Grand Est - Rhin (Haut)
- Ville : Pfastatt
- Code postal : 68120
- Annonce créée le 03/04/2026


