Vente Appartement 97170, Petit-Bourg france 195 000 €
Descriptif du bien
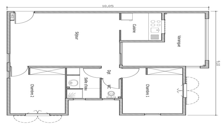
Exclusivité HOP! IMMOBILIER. Découvrez ce lumineux T3 de 74,30 m2 habitables, terrasse comprise, idéalement situé à 10 minutes de Jarry dans un secteur calme de Petit-Bourg. L'appartement se trouve au premier et dernier étage d'une résidence de 2011 comprenant 60 lots répartis en 4 bâtiments d'un étage maximum. Deux places de parking privatives sont à votre disposition.
Les espaces verts de la résidence sont particulièrement soignés et offrent de très beaux points de vue notamment lorsque l'on profite de la belle piscine pour un moment de détente idéal.
L'appartement se compose d'une entrée/séjour de 25,40 m2 environ donnant sur la cuisine ouverte aménagée et partiellement équipée. Il y a deux chambres avec placards d'environ 11 m2 et 12m2, une salle d'eau, des WC séparés et un dégagement. La terrasse qui offre une vue dégagée sur la campagne vous permet de profiter de belles soirées. La résidence est raccordée à la fibre.
Les charges de copropriété s'élèvent à 488 euros par trimestre et la taxe foncière pour l'année 2023 de 1464 euros.
Je reste à votre disposition si vous désirez des informations complémentaires ou pour organiser une visite au 0690293806.
Cette présente annonce a été rédigée sous la responsabilité éditoriale de Sophie THIBAUD agissant sous le statut d'agent commercial immatriculé au RSAC DE POINTE A PITRE n° 487 666 810 auprès de la SAS FCI Patrimoine, HOP IMMOBILIER, au capital de 37 000 euros, 27 avenue de la Marne à MERIGNAC 33700, RCS BORDEAUX n° 500 130 059, Carte professionnelle Transactions sur immeubles et fonds de commerce n° CPI 3301 2017 000 017 791 CCI BORDEAUX.
'Les informations sur les risques auxquels ce bien est exposé sont disponibles sur le site Géorisques : www.georisques.gouv.fr'
Nombre de lots dans la copropriété : 60
Surface carrez : 60,50 m2 + 13,80 m2 de terrasse
Montant des charges annuelles prévisionnelles : 1944 euros
Référence annonce : 693
Taxes foncières : 1464 euros
Dans une copropriété de 60 lots. Quote-part moyenne du budget prévisionnel 1 944 /an. Aucune procédure n'est en cours. Non soumis au DPE. Les informations sur les risques auxquels ce bien est exposé sont disponibles sur le site Géorisques : georisques.gouv.fr.
Votre conseiller HOP! IMMOBILIER : Sophie THIBAUD
Agent commercial (Entreprise individuelle)
RSAC 487666810
- Type de bien : Appartement
- Surface : 60 m²
- Localisation : France - DOM/TOM - Guadeloupe
- Ville : Petit-Bourg
- Code postal : 97170
- Disponible le 01/09/2026
- Annonce créée le 23/01/2026





