Vente Appartement 33600, Pessac france 439 900 €
Descriptif du bien
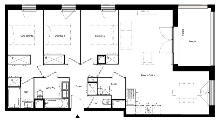
APPARTEMENT DE STANDING AVEC VUE DÉGAGÉE
Découvrez ce magnifique appartement T4 de 88 m², niché au 2ème étage d'une résidence de standing et situé à proximité de toutes les commodités, vous pourrez profiter de la tranquillité tout en ayant accès rapidement à ce dont vous avez besoin.
Profitez d'une vue dégagée depuis votre séjour spacieux de 37 m², baigné de lumière naturelle grâce aux ouvertures en aluminium à double vitrage et prolongé par une terrasse.
Cet appartement comprend 2 chambres confortables, une suite parentale avec dressing et salle d'eau, une salle de bains avec wc, ainsi qu'un second WC indépendant pour un confort optimal.
Le chauffage individuel garantit une température agréable toute l'année. Conçu pour être accessible à tous, cet appartement est conforme aux normes PMR.
Deux places de stationnement intérieures complètent ce bien.
APPARTEMENT DE STANDING AVEC VUE DÉGAGÉE
Honoraires à la charge du vendeur. Dans une copropriété de 23 lots. Aucune procédure n'est en cours. DPE vierge. Les informations sur les risques auxquels ce bien est exposé sont disponibles sur le site Géorisques : georisques.gouv.fr.
Votre conseiller RH Patrimoine : Mathieu AUBERT
Agent commercial (Entreprise individuelle)
RSAC 905372389
RCP 133095770 D 001
- Type de bien : Appartement
- Surface : 88 m²
- Localisation : France - Nouvelle-Aquitaine - Gironde
- Ville : Pessac
- Code postal : 33600
- Annonce créée le 26/09/2025


