Vente Appartement 33600, Pessac france 296 000 €
Descriptif du bien
UN CONFORT DE VIE AU PIED DU TRAMWAY FACE AU PARC
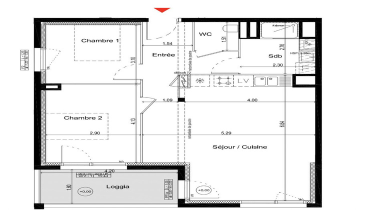
Idéalement situé proche du tramway, au sein d'une résidence à taille humaine et de qualité, cet appartement en R+3 offre un cadre de vie alliant confort et praticité.
Dès l'entrée, vous apprécierez ses espaces bien pensés comprenant un WC indépendant et une salle d'eau fonctionnelle. L'espace nuit se compose de deux chambres confortables offrant calme et sérénité.
La pièce de vie de 30 m², baignée de lumière grâce à son exposition plein sud, s'ouvre sur une terrasse offrant une vue dégagée sur un magnifique parc.
Une place de parking couverte et sécurisée complète ce bien en SUS obligatoire (20 000).
- Frais de Notaires Réduits
- Garanties
- RT 2012
- Exonération de Taxe Foncière
- ...
UN CONFORT DE VIE AU PIED DU TRAMWAY FACE AU PARC
Honoraires à la charge du vendeur. Dans une copropriété de 46 lots. Aucune procédure n'est en cours. DPE en cours. Les informations sur les risques auxquels ce bien est exposé sont disponibles sur le site Géorisques : georisques.gouv.fr.
Votre conseiller RH Patrimoine : Maxime HERVE
Agent commercial (Entreprise individuelle)
RSAC 133095555 J
RCP 13309666 J
- Type de bien : Appartement
- Surface : 65 m²
- Localisation : France - Nouvelle-Aquitaine - Gironde
- Ville : Pessac
- Code postal : 33600
- Annonce créée le 07/02/2025



