Vente Appartement 22700, Perros-Guirec france 188 000 €
Descriptif du bien
MON BIEN A LA MER, spécialiste de l'immobilier neuf sur les côtes bretonnes, vous propose :
Nouvelle résidence RE2020 sur les hauteurs de Perros-Guirec.
Commerces, Ecole et complexe sportif KERABRAM : moins de 5 min à pied.
Plage et Port à 5 min en voiture / 10 min vélo.
Chauffage électrique, ballon thermodynamique, volets roulants électriques, douches à l'italienne, Ascenseur.
Livraison fin 2027. Frais de notaire réduits.
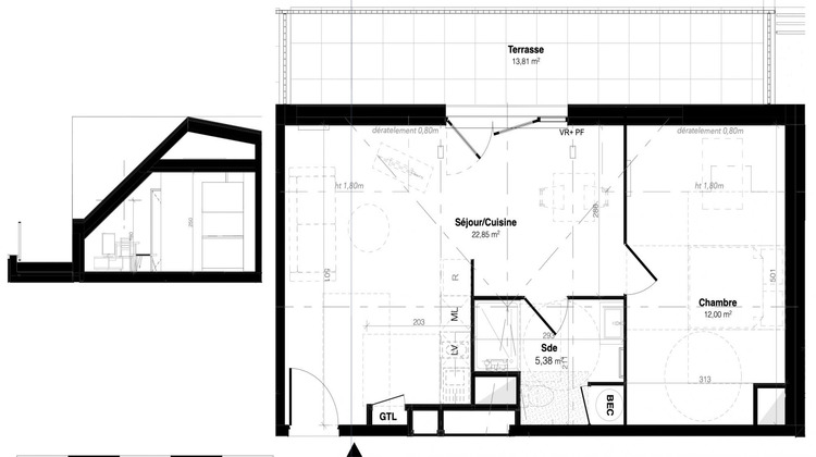
T2 au 2è et dernier étage de 40,23m2 carrez et 46,48 m2 au sol :
- terrasse 13,81m2
- chambre 15m2
- séjour avec coin cuisine 26m2
- salle d'eau wc
- double parking inclus.
Nous Consulter
Non soumis au DPE. Les informations sur les risques auxquels ce bien est exposé sont disponibles sur le site Géorisques : georisques.gouv.fr.
Votre conseiller MON BIEN A LA MER : Gérant - .fr MON BIEN A LA MER
Carte T CPI 2201 2018 000 025 040
RCP ACM IARD B1 7025278
- Type de bien : Appartement
- Surface : 40 m²
- Localisation : France - Bretagne - Côtes d'Armor
- Ville : Perros-Guirec
- Code postal : 22700
- Annonce créée le 30/01/2026





