Vente Appartement 24000, PERIGUEUX france 124 000 €
Descriptif du bien
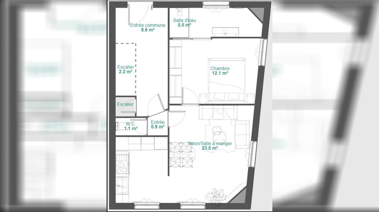
Leon I - Situé au 40 rue Léon Dessales à Périgueux, dans un petit immeuble de seulement quatre logements, cet appartement en rez-de-chaussée offre une opportunité rare : un bien entièrement rénové, avec extérieur privatif, au coeur d'un secteur calme et proche de toutes les commodités. D'une surface de 43,10 m², "Léon I" a été pensé pour offrir un cadre de vie confortable, fonctionnel et moderne. Dès l'entrée, on découvre un espace bien distribué, avec un WC indépendant, puis une agréable pièce de vie regroupant le salon, la salle à manger et la cuisine. L'ensemble bénéficie d'une belle luminosité et d'un agencement optimisé, idéal pour un quotidien fluide et agréable. La partie nuit se compose d'une chambre indépendante, au calme, ainsi que d'une salle d'eau contemporaine, entièrement repensée dans le cadre de la rénovation. Le véritable atout de "Léon I" réside à l'extérieur. Depuis la pièce de vie, on accède à un espace extérieur privatif d'environ 35 m², parfait pour profiter des beaux jours, installer un coin repas, un espace détente ou un jardin urbain. En fond de parcelle, une dépendance d'environ 16 m² vient compléter l'ensemble. Cet espace supplémentaire pourra accueillir un atelier, un espace de stockage, un bureau ou toute autre utilisation selon vos besoins. L'appartement fait l'objet d'une rénovation complète, réalisée par un marchand de biens, avec des prestations de qualité : chauffage électrique nouvelle génération, menuiseries performantes, finitions soignées et équipements contemporains. Les futurs acquéreurs auront la possibilité, selon l'avancement du chantier, de choisir certains éléments, notamment la cuisine, afin de personnaliser leur futur logement. L'opération bénéficie de toutes les garanties décennales, offrant une vraie sérénité pour un achat sécurisé. Le bien sera livré clé en main et conforme aux normes actuelles. Le stationnement est gratuit dans la rue, et il est également possible d'acquérir un garage en supplément, un vrai plus dans ce secteur. La livraison est prévue pour septembre, ce qui en fait une opportunité idéale aussi bien pour une résidence principale que pour un investissement patrimonial, dans un quartier recherché de Périgueux. Les visuels présentés sont des projections 3D, non contractuelles, permettant de se projeter dans l'ambiance et les prestations futures de l'appartement. "Leon I" est un appartement rare sur le marché, alliant rénovation complète, extérieur, dépendance et garanties, dans un environnement urbain pratique et agréable. Les charges de copropriété sont communiquées à titre indicatif, sur la base d'une estimation prévisionnelle. Leur montant définitif sera arrêté après la création officielle de la copropriété. Copropriété de 4 lots - dont 4 lots habitation. Charges annuelles : 600 euros.
- Type de bien : Appartement
- DPE : D - 151 à 230 kWh/².an
- GES : D - 21 à 35 kg eq CO2/².an
- Surface : 43 m²
- Localisation : France - Nouvelle-Aquitaine - Dordogne
- Ville : PERIGUEUX
- Code postal : 24000
- Annonce créée le 17/02/2026





