Vente Appartement 75017, Paris france 419 000 €
Descriptif du bien
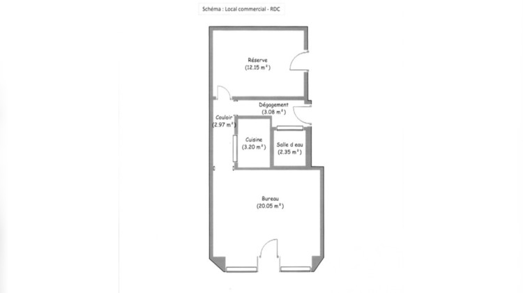
Iad France - Stéphanie Foulquier vous propose : * Métro BROCHANT - BATIGNOLLES / 82 rue Lemercier - Rue Clairaut : Anciennement local de bureaux en RDC pouvant être facilement transformé en appartement. Il se compose d'une pièce lumineuse de 20m. 2 donnant sur la rue Clairaut, d'une chambre sur cour calme, d'une cuisine a équiper et d'une salle d'eau avec WC - Triple accès (Entrée principale via le hall de l'immeuble puis + porte fenêtre sur cour + porte fenêtre sur rue) - DPE E - À proximité immédiate des commerces, transports et du quartier des Batignolles - Charges courantes : 420 / Trim. - Cave -
La presente annonce immobiliere vise 2 lots situés dans une copropriété de 18 lots au total et ne faisant l'objet d'aucune procédure en cours citée à l'article L. 721-1 du code de la construction et de l'habitation. Montant moyen mensuel de charges déclaré par le vendeur : 420¤ par mois (soit 5040 ¤ annuel). Honoraires d'agence à la charge du vendeur.
Information d'affichage énergétique sur ce bien : classe ENERGIE E indice 328 et classe CLIMAT B indice 9. Les informations sur les risques auxquels ce bien est exposé, y compris l'obligation légale de débroussaillement, sont disponibles sur le site Géorisques : http://www.georisques.gouv.fr.
La présente annonce immobilière a été rédigée sous la responsabilité éditoriale de Mme Stéphanie Foulquier mandataire indépendant en immobilier (sans détention de fonds), agent commercial de la SAS I@D France immatriculé au RSAC de PARIS sous le numéro 524 400 785, titulaire de la carte de démarchage immobilier pour le compte de la société I@D France SAS.Informations LOI ALUR : Soumis au régime de copropriété. Nombre de lots : 18. Quote part annuelle(moyenne) : 5040 euros. Honoraires charge vendeur. (gedeon_6727_32923703)
- Type de bien : Appartement
- DPE : E - 231 à 330 kWh/².an
- GES : B - 6 à 10 kg eq CO2/².an
- Surface : 48 m²
- Localisation : France - ile-de-france - Paris
- Ville : Paris
- Code postal : 75017
- Annonce mise à jour le 30/04/2026





