Vente Appartement 75017, Paris france 2 045 000 €
Descriptif du bien
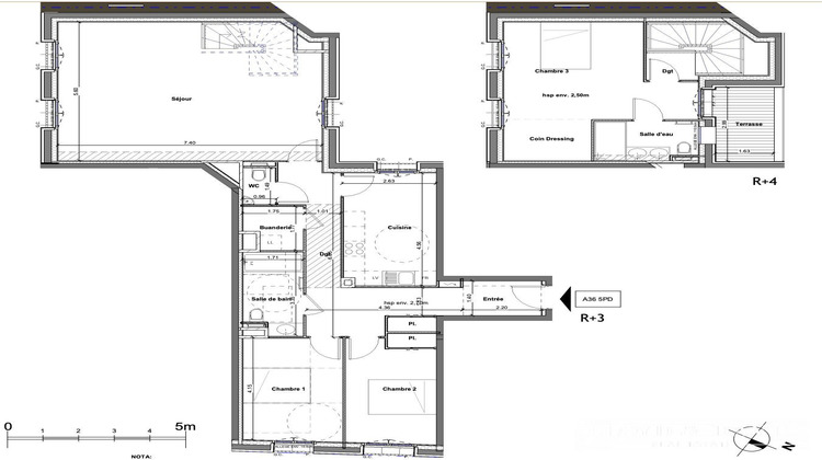
Rare sur le marché, ce duplex 5 pièces de 125?m² offre un cadre de vie raffiné et contemporain, alliant volumes lumineux, confort absolu et prestations haut de gamme. Terrasse et balcon privatifs apportent un espace extérieur rare à Paris, idéal pour profiter de la vie citadine avec élégance et intimité.
Situé dans un quartier recherché du 15? arrondissement, ce bien conjugue luxe discret, lumière naturelle et atmosphère exceptionnelle, pour une expérience de vie parisienne unique.
Disponibilité : 3? trimestre 2026
Points forts :
Duplex lumineux et spacieux
Terrasse et balcon privatifs offrant un cadre extérieur privilégié
Finitions et matériaux haut de gamme, design contemporain
Quartier prisé avec commerces, écoles et transports à proximité
Llyod & Davis
Mouquet escoty
Honoraires à la charge du vendeur. Dans une copropriété de 19 lots. Quote-part moyenne du budget prévisionnel 1 /an. Aucune procédure n'est en cours. Non soumis au DPE. Les informations sur les risques auxquels ce bien est exposé sont disponibles sur le site Géorisques : georisques.gouv.fr. Ce bien vous est proposé par un agent commercial (Entreprise individuelle).
Votre conseiller LLOYD & DAVIS : Escoty MOUQUET
Agent commercial (Entreprise individuelle)
RCP RK0002554 Markel
- Type de bien : Appartement
- Surface : 125 m²
- Localisation : France - ile-de-france - Paris
- Ville : Paris
- Code postal : 75017
- Annonce créée le 23/01/2026




