Vente Appartement 75016, Paris france 1 875 000 €
Descriptif du bien
Appartement haussmannien de prestige à renover Paris 16e Proximité Trocadéro
Situé au coeur du 16? arrondissement de Paris, entre l'avenue Georges Mandel et la place de Mexico, à quelques minutes à pied du Trocadéro, cet appartement haussmannien d'exception offre un cadre de vie élégant et central.
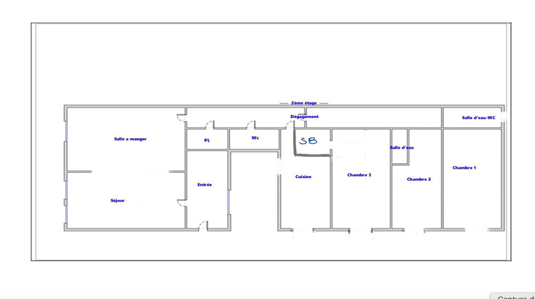
D'une superficie de 140 m², ce bien rare se trouve au 2? étage d'un immeuble haussmannien de caractère datant de 1910. Il conserve tous les attributs du style haussmannien : parquet point de Hongrie, cheminées d'époque, moulures authentiques, belle hauteur sous plafond.
L'appartement se compose d'un vaste séjour / salle à manger, de trois chambres dont : une suite parentale avec salle de bain privative, une seconde chambre avec salle d'eau et WC, et une troisième chambre élégante avec salle de douche.
La distribution modulable permet la création d'une quatrième chambre selon vos besoins (famille, bureau). De nombreux espaces de rangement optimisent le confort au quotidien.
Bénéficiant d'un emplacement stratégique, l'appartement vous garantit un accès immédiat à la Mairie, aux lignes de métro 9 et 6, à la place de Mexico, à l'Avenue Georges Mandel et au Trocadéro. Il s'inscrit dans le secteur scolaire privilégié de Janson de Sailly.
Un projet de rénovation sur mesure permettra de révéler tout le potentiel de ce bien de standing. Une cave en sous-sol complète cet appartement rare à la vente dans le Paris 16?.
Honoraires inclus de 4.17% TTC à la charge de l'acquéreur. Prix hors honoraires 1 800 000 . Classe énergie E, Classe climat E Montant estimé des dépenses annuelles d'énergie pour un usage standard : entre 3398.00 et 4599.00 sur les années 2021, 2022 et 2023 (abonnements compris). Les informations sur les risques auxquels ce bien est exposé sont disponibles sur le site Géorisques : georisques.gouv.fr.
Votre conseiller Global Approach : Directeur d'agence - Lizbeth Kleij
Carte T CPI 75012018000026182
RCP 75012018000026182 ACM-IAR S.A.
- Type de bien : Appartement
- DPE : E - 231 à 330 kWh/².an
- GES : E - 36 à 55 kg eq CO2/².an
- Surface : 138 m²
- Localisation : France - ile-de-france - Paris
- Ville : Paris
- Code postal : 75016
- Annonce mise à jour le 20/03/2026





