Vente Appartement 75014, Paris france 499 000 €
Descriptif du bien
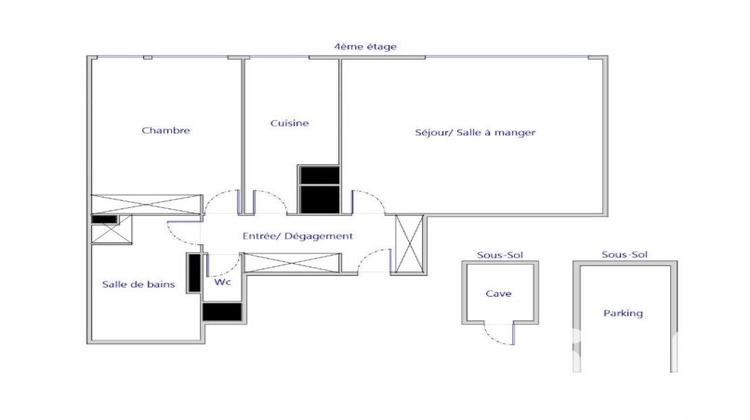
Iad France - Diogo Soto Maior vous propose : Dans une rue calme et très recherchée du 14ème arrondissement, découvrez ce superbe appartement deux pièces d'environ 51 m², situé au 4ème étage avec ascenseur au sein d'un immeuble bien entretenu, sécurisé et avec un gardien. Entièrement tourné sur cour, ce bien offre un calme absolu et une atmosphère agréable. Il se compose d'une entrée avec rangements, d'un séjour lumineux, d'une cuisine indépendante, d'une chambre sur cour avec rangements, d'une salle de bains et d'un WC séparé. Une cave et un parking complètent ce bien. Des travaux de rafraîchissement sont à prévoir. Transports accessibles à pied : Métro ligne 6 - Station Saint-Jacques (environ 3 minutes) RER B - Denfert-Rochereau (environ 6 minutes) La presente annonce immobiliere vise 3 lots situés dans une copropriété de 120 lots au total et ne faisant l'objet d'aucune procédure en cours citée à l'article L. 721-1 du code de la construction et de l'habitation. Montant moyen mensuel de charges déclaré par le vendeur : 228¤ par mois (soit 2736 ¤ annuel). Honoraires d'agence à la charge du vendeur. Information d'affichage énergétique sur ce bien : classe ENERGIE D indice 211 et classe CLIMAT D indice 37. Les informations sur les risques auxquels ce bien est exposé, y compris l'obligation légale de débroussaillement, sont disponibles sur le site Géorisques : http://www.georisques.gouv.fr.La présente annonce immobilière a été rédigée sous la responsabilité éditoriale de M Diogo Soto Maior mandataire indépendant en immobilier (sans détention de fonds), agent commercial de la SAS I@D France immatriculé au RSAC de PARIS sous le numéro 932788417, titulaire de la carte de démarchage immobilier pour le compte de la société I@D France SAS.Informations LOI ALUR : Soumis au régime de copropriété. Nombre de lots : 120. Quote part annuelle(moyenne) : 2736 euros. Honoraires charge vendeur. (gedeon_6727_32722471)
- Type de bien : Appartement
- DPE : D - 151 à 230 kWh/².an
- GES : D - 21 à 35 kg eq CO2/².an
- Surface : 51 m²
- Localisation : France - ile-de-france - Paris
- Ville : Paris
- Code postal : 75014
- Annonce mise à jour le 26/03/2026





