Vente Appartement 75006, Paris france 4 400 000 €
Descriptif du bien
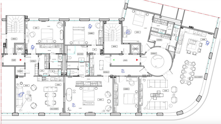
Plateau de 280 m² Fort Potentiel Possibilité de Création de Logements
? Secteur recherché 2? étage avec ascenseur À rénover entièrement
Nous vous proposons ce vaste plateau brut de plus de 280 m², actuellement aménagé en bureaux, situé au 2? étage d'un immeuble avec ascenseur. Rare sur le secteur, ce bien dispose d'un fort potentiel de transformation, avec la possibilité de créer deux à trois logements selon vos besoins ou projets (voir plans).
? Caractéristiques principales :
Surface totale : environ 280 m²
Actuellement composé de 11 pièces à réagencer
2 salles d'eau existantes
Cuisine indépendante
Balcon
Chauffage collectif
Ascenseur
? Ce bien offre un énorme potentiel d'aménagement, que ce soit pour un usage résidentiel, professionnel (libéral, bureaux haut de gamme), ou un investissement locatif avec division (projet soumis à autorisation).
? Travaux à prévoir :
L'ensemble nécessite une rénovation complète : remise aux normes, agencement intérieur, rafraîchissement. Les parties communes méritent également un rafraîchissement mais la copropriété est stable.
?? Environnement & Accessibilité :
Un emplacement stratégique avec toutes les commodités à moins de 5 minutes à pied :
Transports : bus, métro
Écoles de la crèche au collège
Commerces, restaurants, médecins
Parcs et espaces verts à proximité
Tramway à 10 minutes en voiture
? Un bien unique à fort potentiel :
? Idéal pour investisseurs, marchands de biens ou familles à la recherche de grands volumes à personnaliser.
? Contactez-nous dès maintenant pour obtenir les plans, discuter des possibilités d'aménagement et organiser une visite.
Honoraires inclus de 4.17% à la charge de l'acquéreur. Prix hors honoraires 4 224 000 . Dans une copropriété de 100 lots. Aucune procédure n'est en cours. Non soumis au DPE. Les informations sur les risques auxquels ce bien est exposé sont disponibles sur le site Géorisques : georisques.gouv.fr.
- Type de bien : Appartement
- Surface : 280 m²
- Localisation : France - ile-de-france - Paris
- Ville : Paris
- Code postal : 75006
- Annonce créée le 25/04/2025





