Vente Appartement 75004, Paris france 795 000 €
Descriptif du bien
Iad France - Ivana NECASOVA (06 77 13 41 14) vous propose : À deux pas de la Place des Vosges - Appartement de caractère avec entrée privative
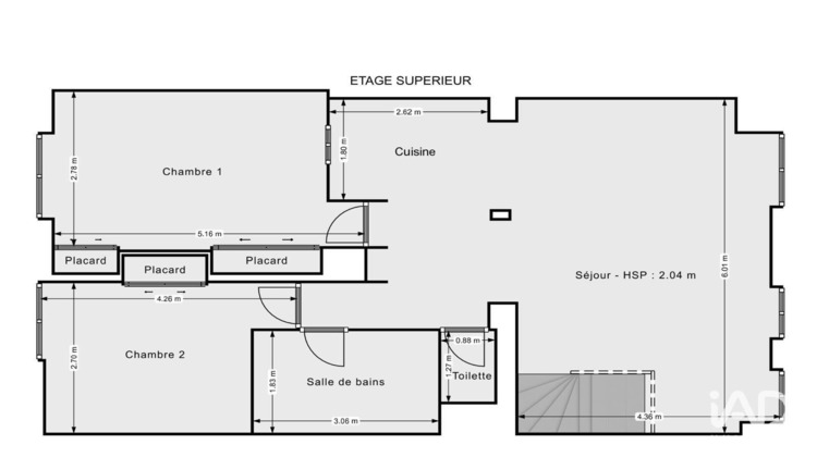
Idéalement situé rue Saint-Antoine, à proximité immédiate de la Place des Vosges, découvrez ce bel appartement de 66,32 m² environ Loi Carrez au 1er étage, accessible par une entrée privée avec escalier intérieur.
Il se compose d'une vaste pièce de vie, bénéficiant d'une isolation acoustique professionnelle, avec cuisine ouverte aménagée et équipée, de deux grandes chambres, d'une salle de bains complète (douche + baignoire), ainsi que de toilettes séparés.
Vous apprécierez sa double exposition (sur rue et sur cour), dont une vue dégagée sur un monument historique. L'appartement offre également de nombreux rangements intégrés.
Usage professionnel (profession libérale) autorisé
Immeuble sécurisé, entrée en cours de rénovation
Un bien rare, entre charme de l'ancien et prestations modernes, au cOEur du Marais historique.
La présente annonce immobilière vise 1 lot principal situé dans une copropriété formant 19 lots au total ne faisant l'objet d'aucune procédure en cours et d'un montant de charges d'environ 169.95 ¤ par mois (soit 2039.4 ¤ annuel) déclaré par le vendeur. Honoraires d'agence à la charge du vendeur. Information d'affichage énergétique sur ce bien : classe ENERGIE E indice 269 et classe CLIMAT B indice 8. Les informations sur les risques auxquels ce bien est exposé sont disponibles sur le site Géorisques : www.georisques.gouv.fr. La présente annonce immobilière a été rédigée sous la responsabilité éditoriale de Mlle Ivana NECASOVA EI (ID 37009), mandataire indépendant en immobilier (sans détention de fonds), agent commercial de la SAS I@D France immatriculé au RSAC de paris sous le numéro 850109430, titulaire de la carte de démarchage immobilier pour le compte de la société I@D France SAS. Le présent bien est commercialisé dans le cadre d'une délégation de mandat.
Retrouvez tous nos biens sur notre site internet. www.iadfrance.fr.Informations LOI ALUR : Soumis au régime de copropriété. Nombre de lots : 21. Quote part annuelle(moyenne) : 2039.4 euros. Honoraires charge vendeur. (gedeon_6727_32425576)
- Type de bien : Appartement
- DPE : E - 231 à 330 kWh/².an
- GES : B - 6 à 10 kg eq CO2/².an
- Surface : 66 m²
- Localisation : France - ile-de-france - Paris
- Ville : Paris
- Code postal : 75004
- Annonce créée le 16/04/2026





