Vente Appartement 75007, PARIS 7 france 730 000 €
Descriptif du bien
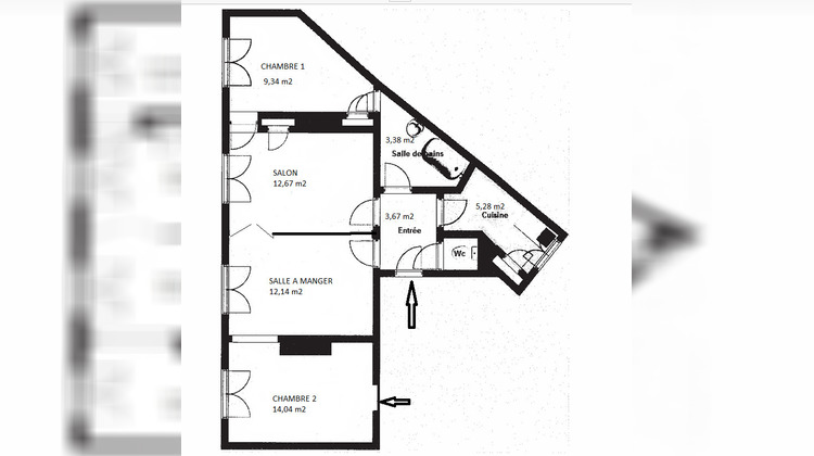
EXCLUSIVITE. A 3 MN A PIED DU METRO ECOLE MILITAIRE. RUE CHEVERT. Dans une copropriété signée de 1860 bien entretenue et calme, un appartement clair et charmant de 4 pièces en rez-de-chaussée d'une surface carrez de 62 m2 offrant une entrée, un séjour, deux chambres, une salle à manger ou une 3ème chambre, une cuisine indépendante, une salle de bain, WC séparés. Aucune perte de place. Une pièce peut avoir un ACCES INDEPENDANT par le hall principal de l'immeuble. Parquet, 3 m de hauteur sous plafond, cheminées. Une cave située sous l'appartement. Professions libérales autorisées. Charges annuelles de copropriété de 1.680 euros. Copropriété de 25 lots principaux. Contact direct 0652740518 Muriel Garnreiter (E.I) muriel@rez-de-chaussee.com, RSAC 2018AC00169. (3.84 % honoraires TTC à la charge de l'acquéreur.) Copropriété de 25 lots (). (RDC) Muriel GARNREITER (EI) Agent Commercial - Numéro RSAC : - .
- Type de bien : Appartement
- DPE : F - 331 à 450 kWh/².an
- GES : C - 11 à 20 kg eq CO2/².an
- Surface : 62 m²
- Localisation : France - ile-de-france - Paris
- Ville : PARIS 7
- Code postal : 75007
- Annonce mise à jour le 07/10/2025







