Vente Appartement 75116, PARIS 16 france 695 000 €
Descriptif du bien
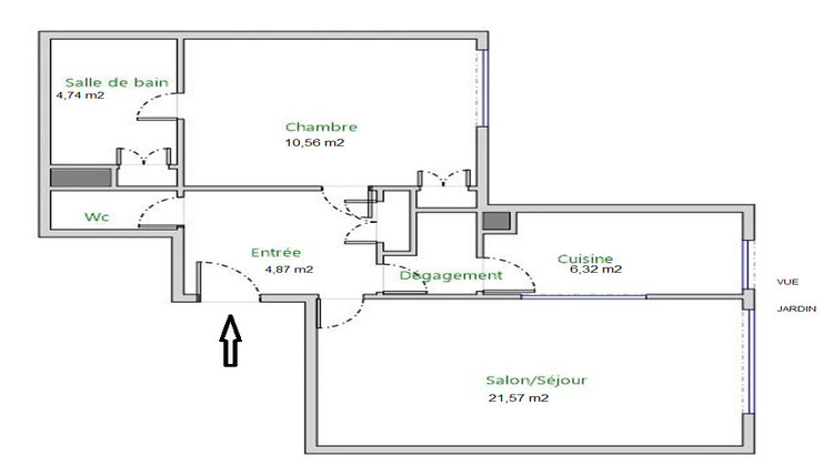
RUE DE LA FAISANDERIE/RUE DE LONGCHAMP. Dans une copropriété bien entretenue et sécurisée de 1980 et aux parties communes soignées, un appartement T2 lumineux et calme au 2ème étage avec ascenseur d'une surface carrez de 51,88 m2 offrant une vue dégagée et sans vis-à-vis sur un jardin. Il se compose d'une entrée avec placards, un vaste séjour de 22 m2 une cuisine avec verrière, une chambre de 11 m2, une salle de bain, un cabinet d'aisance séparé. DPE D. Une cave complète ce bien sans perte de place. Charges annuelles de copropriété de 2.400 euros. Copropriété de 25 logements principaux. ACCES PMR. Contact direct 0652740518 Muriel Garnreiter RSAC 2018AC00169 muriel@rez-de-chaussee.com. (4.04 % honoraires TTC à la charge de l'acquéreur.) Copropriété de 25 lots.
- Type de bien : Appartement
- DPE : D - 151 à 230 kWh/².an
- GES : C - 11 à 20 kg eq CO2/².an
- Surface : 52 m²
- Localisation : France - ile-de-france - Paris
- Ville : PARIS 16
- Code postal : 75116
- Annonce créée le 24/03/2026








