Vente Appartement 75016, PARIS 16 france 3 350 000 €
Descriptif du bien
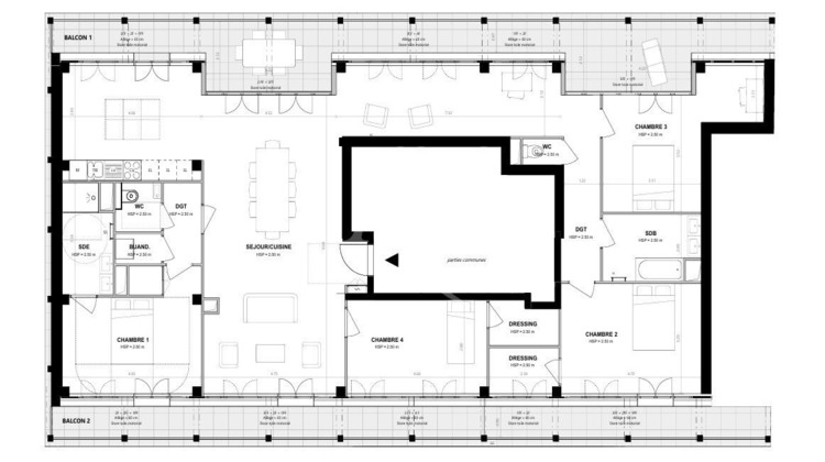
Une réalisation d'exception mêlant réhabilitation d'un patrimoine existant et construction neuve, au Coeur du très prisé 16e arrondissement de Paris. Idéalement située au 19 rue de Passy, cette adresse d'exception N.19 PASSY conjugue élégance intemporelle et modernité architecturale. Un appartement d'exception de 220 m² situé au 6? et dernier étage d'un immeuble neuf de grand standing. Ce bien rare séduit par ses volumes remarquables, ses espaces extérieurs généreux et la qualité de ses prestations. L'espace de réception offre une superbe pièce de vie avec séjour et cuisine totalisant 74,50 m², prolongée par deux larges balcons représentant plus de 53 m² d'espaces extérieurs, idéals pour une vie intérieure/extérieure privilégiée. La partie nuit se compose de quatre chambres confortables aux surfaces harmonieuses (entre 13 et 15,50 m²), accompagnées de deux dressings. L'appartement dispose également d'une salle de bains, d'une salle d'eau, de deux WC indépendants ainsi que d'une buanderie, garantissant un confort optimal et une organisation fonctionnelle au quotidien. Les dégagements assurent une circulation fluide entre les espaces, renforçant la sensation de volume et d'élégance. L'ensemble répond aux standards du haut de gamme contemporain, dans un environnement résidentiel recherché. A proximité immédiate des transports (bus et métro à 5 min, RER et gare à 10 min), des écoles et des commodités, ce bien conjugue adresse prestigieuse, prestations modernes et qualité de vie rare à Paris. Contactez-nous dès maintenant pour plus d'informations et pour organiser une visite ! LES + ARGOS CONSEIL : Prix direct promoteur (possibilité d'offres commerciales ou de frais de notaire offerts selon offres commerciales) Possibilité de rendez vous physique dans nos bureaux Accès à plus de 600 programmes en Ile de France et 3.000 en France Frais de notaire réduit Possibilité de TVA réduite (Selon éligibilité) Accompagnement dans les démarches administratives et suivi avec les promoteurs Accompagnement dans la sélection de biens immobiliers Les honoraires sont à la charge du vendeur Accompagnement dans l'obtention du financement
- Type de bien : Appartement
- Surface : 220 m²
- Localisation : France - ile-de-france - Paris
- Ville : PARIS 16
- Code postal : 75016
- Annonce créée le 23/12/2025

