Vente Appartement 75011, PARIS 11 france 378 000 €
1 / 5
Descriptif du bien
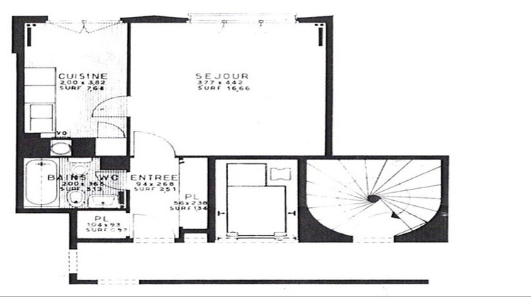
Square de la Roquette, dans un immeuble récent avec gardien, au 6e étage, un grand studio bien entretenu de 32,23m² carrez, comprenant séjour, cuisine séparée, salle d'eau avec WC. Logement très lumineux, calme et vue sur un espace vert sans vis-à-vis. Parfait pour premier achat ou investisseur. Copropriété de 50 lots (Pas de procédure en cours). Charges annuelles : 1555 euros. Kevin LY (EI) Agent Commercial - Numéro RSAC : 939694642 - .
- Type de bien : Appartement
- DPE : D - 151 à 230 kWh/².an
- GES : D - 21 à 35 kg eq CO2/².an
- Surface : 32 m²
- Localisation : France - ile-de-france - Paris
- Ville : PARIS 11
- Code postal : 75011
- Annonce créée le 24/02/2026




