Vente Appartement 75010, PARIS 10 france 163 000 €
Descriptif du bien
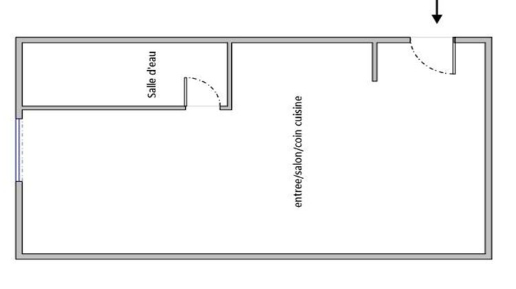
Mairie du 10ème Paris Au 1er étage sur cour, découvrez ce studio plein de charme, au calme. Il se compose d'une pièce principale avec coin cuisine (à terminer d'aménager) et d'une salle d'eau avec WC. Des travaux sont à prévoir : pose du sol, aménagement de la cuisine, pose de radiateur ? L'occasion idéale de créer un espace à votre image et d'exploiter tout le potentiel de ce bien . Un emplacement recherché, un cadre paisible, un volume facile à optimiser : parfait pour un premier achat ou un pied-à-terre parisien. Prix de vente : 163.000 euros (honoraires inclus) Prix hors honoraires : 155.000 euros Honoraires à la charge de l'acquéreur : 8.000 euros (5.16 % honoraires TTC à la charge de l'acquéreur.) Copropriété de 62 lots - dont 43 lots habitation. Charges annuelles : 750 euros.
- Type de bien : Appartement
- DPE : D - 151 à 230 kWh/².an
- GES : B - 6 à 10 kg eq CO2/².an
- Surface : 15 m²
- Localisation : France - ile-de-france - Paris
- Ville : PARIS 10
- Code postal : 75010
- Annonce créée le 10/03/2026



