Vente Appartement 71600, PARAY-LE-MONIAL france 349 000 €
Descriptif du bien
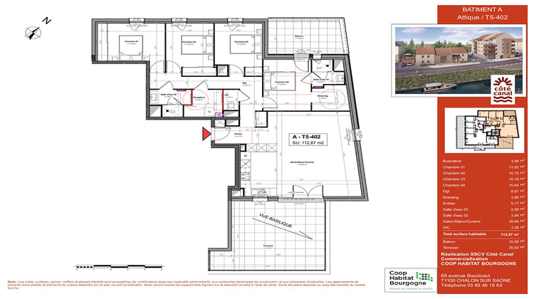
Ce futur appartement d'environ 112.87 m², situé au quatrième et dernier étage (avec ascenseur) disposera : - d'une terrasse d'environ 30.93 m² avec vue basilique et canal - d'un balcon d'environ 10.55 m² avec vue canal - d'un garage extérieur privatif Il sera composé d'une entrée avec placard, d'un séjour/cuisine d'environ 39.64 m² ouvrant sur la terrasse, de trois chambres avec placard, d'une salle d'eau (douche, meuble vasque et sèche serviette), d'un WC séparé, d'une suite parentale ouverte sur le balcon avec dressing et salle d'eau (douche, meuble vasque et sèche serviette) et d'une buanderie avec branchement lave-linge. Copropriété de 52 lots - dont 23 lots habitation. (). Charges annuelles : 1 euros.
- Type de bien : Appartement
- Surface : 112 m²
- Localisation : France - Bourgogne-Franche-Comté - Saône-et-Loire
- Ville : PARAY-LE-MONIAL
- Code postal : 71600
- Annonce créée le 17/03/2026




