Vente Appartement 71600, PARAY-LE-MONIAL france 155 000 €
1 / 5
Descriptif du bien
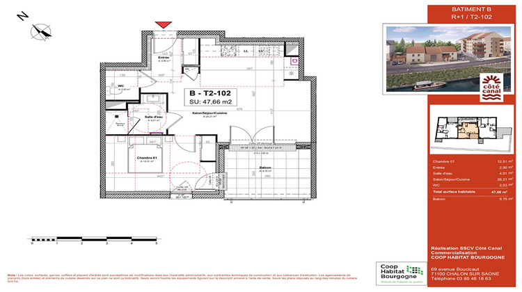
Ce futur appartement d'environ 47.66 m², situé au 1er étage (sans ascenseur) disposera : - d'un balcon d'environ 8.75 m² - d'une place de parking extérieure privative Il sera composé d'une entrée, d'un séjour/cuisine d'environ 26.21 m² ouvrant sur la terrasse, d'une chambre avec placard, d'une salle d'eau (douche, meuble vasque, sèche serviette et branchement lave-linge) et d'un WC séparé . Copropriété de 52 lots - dont 23 lots habitation.().
- Type de bien : Appartement
- Surface : 47 m²
- Localisation : France - Bourgogne-Franche-Comté - Saône-et-Loire
- Ville : PARAY-LE-MONIAL
- Code postal : 71600
- Annonce créée le 17/03/2026




