Vente Appartement 22500, Paimpol france 338 800 €
Descriptif du bien
Nouvelle résidence de standing en front de Mer, à 400m du centre ville/port, 10 min en voiture de l'embarcadère BREHAT/Pointe de l'ARCOUEST.
Normes RE2020. Ascenseur, Frais de notaire réduits, Livraison fin 2026.
Carrelage au sol Villeroy & Boch, Parquet stratifié dans les chambres, Grand bac à douche extraplat avec faïence toute hauteur Villeroy & Boch, volets roulants électriques toutes fenêtres, chauffage électrique, résidence sécurisée.
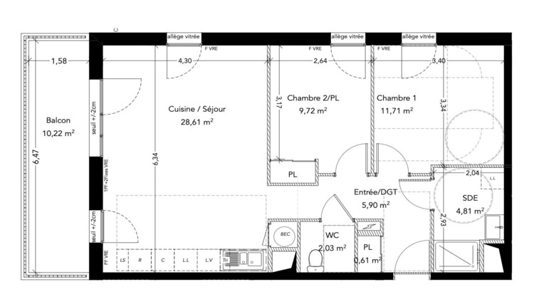
Ce T3 n'a pas de vue Mer / exposé sud ouest.
Séjour de 28,61m2, terrasse 10,22m2.
Deux chambres (11,71-9,72).
Wc séparé, salle d'eau, placards, un parking.
Nous Consulter
Honoraires à la charge du vendeur. Non soumis au DPE. Les informations sur les risques auxquels ce bien est exposé sont disponibles sur le site Géorisques : georisques.gouv.fr.
Votre conseiller MON BIEN A LA MER : Gérant - .fr MON BIEN A LA MER
Carte T CPI 2201 2018 000 025 040
RCP ACM IARD B1 7025278
- Type de bien : Appartement
- Surface : 63 m²
- Localisation : France - Bretagne - Côtes d'Armor
- Ville : Paimpol
- Code postal : 22500
- Annonce créée le 24/10/2025





