Vente Appartement 22500, Paimpol france 427 500 €
Descriptif du bien
Nouvelle résidence de standing en front de Mer, à 400m du centre ville/port, 10 min en voiture de l'embarcadère BREHAT/Pointe de l'ARCOUEST.
Normes RE2020. Ascenseur, Frais de notaire réduits, Livraison fin 2026.
Carrelage au sol Villeroy & Boch, Parquet stratifié dans les chambres, Grand bac à douche extraplat avec faïence toute hauteur Villeroy & Boch, volets roulants électriques toutes fenêtres, chauffage électrique, résidence sécurisée.
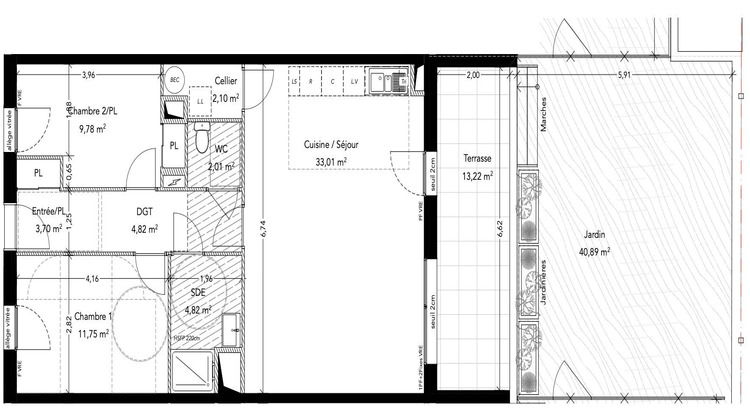
Spacieux T3 en rez de chaussée surélevé. Vue Mer.
Séjour de 33m2 s'ouvrant sur une terrasse de 13m2 et jardin de 40m2.
Deux chambres (11,75m2 et 9,78m2) côté cour.
Wc séparé, cellier, salle d'eau, placards, un parking.
Nous Consulter
Honoraires à la charge du vendeur. Non soumis au DPE. Les informations sur les risques auxquels ce bien est exposé sont disponibles sur le site Géorisques : georisques.gouv.fr.
Votre conseiller MON BIEN A LA MER : Gérant - .fr MON BIEN A LA MER
Carte T CPI 2201 2018 000 025 040
RCP ACM IARD B1 7025278
- Type de bien : Appartement
- Surface : 72 m²
- Localisation : France - Bretagne - Côtes d'Armor
- Ville : Paimpol
- Code postal : 22500
- Annonce créée le 24/10/2025





