Vente Appartement 69310, Oullins france 220 000 €
Descriptif du bien
Iad France - Fabien Torrecillas vous propose : T4 MODULABLE - RÉSIDENCE RÉCENTE - IDÉAL INVESTISSEUR OU FAMILLE
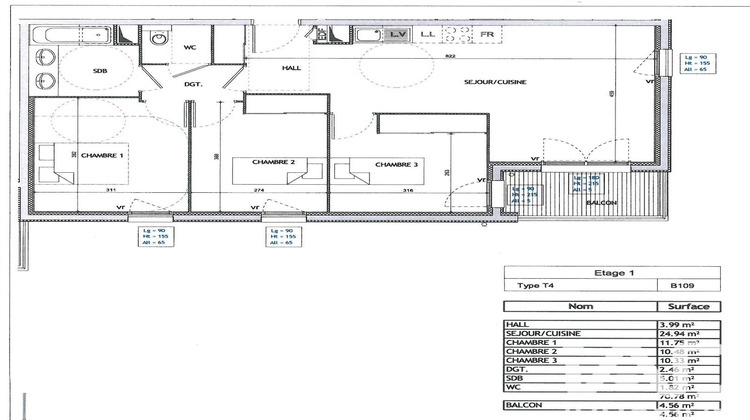
Situé boulevard de l'Europe, à Oullins, cet appartement T4 de 71 m² se trouve au premier étage d'une résidence fermée et sécurisée construite en 2012, en retrait de la rue et au calme.
L'environnement est pratique et familial. Les commerces de proximité sont accessibles à pied. Écoles et crèches se trouvent à quelques minutes. Les lignes de bus 15,17 et C7 assurent une bonne desserte vers Lyon et les environs.
La faculté de médecine est aussi à proximité ce qui ont fait un bien idéal pour une collocation.
Dès l'entrée avec placard, on retrouve la pièce de vie de 25 m² qui réunit un séjour agréable et une cuisine ouverte équipée. L'ensemble s'ouvre sur un balcon de 4,5 m², idéal pour profiter d'un extérieur au quotidien.
L'espace nuit se compose de trois chambres comprises entre 10 et 12 m² dont 2 avec placard. L'une d'elles peut être intégrée au séjour afin de transformer l'appartement en T3 et créer une grande pièce de vie de 35 m², selon les besoins. Une salle de bain et des WC séparés complètent l'ensemble.
Le logement est en bon état général. Un rafraîchissement des murs ainsi qu'une modernisation de la cuisine pourront être envisagés pour le remettre au goût du jour.
Le chauffage est actuellement assuré par une chaudière gaz collective. Le raccordement au chauffage urbain a été voté en copropriété et intégralement réglé par le propriétaire actuel. Les charges de copropriété incluent le chauffage, l'eau chaude et l'eau froide, offrant un confort de gestion au quotidien.
La copropriété est bien entretenue et dispose d'un local à vélos.
Possibilité d'acquérir en sus un ou deux garages box fermés en sous-sol.
Un bien fonctionnel et modulable dans un secteur recherché aux portes de Lyon.
Contactez-moi pour plus d'informations ou pour organiser une visite.
La presente annonce immobiliere vise 3 lots situés dans une copropriété de 321 lots au total et ne faisant l'objet d'aucune procédure en cours citée à l'article L. 721-1 du code de la construction et de l'habitation. Montant moyen mensuel de charges déclaré par le vendeur : 144¤ par mois (soit 1728 ¤ annuel). Honoraires d'agence à la charge du vendeur.
Information d'affichage énergétique sur ce bien : classe ENERGIE B indice 56 et classe CLIMAT B indice 10. Les informations sur les risques auxquels ce bien est exposé, y compris l'obligation légale de débroussaillement, sont disponibles sur le site Géorisques : http://www.georisques.gouv.fr.
La présente annonce immobilière a été rédigée sous la responsabilité éditoriale de M Fabien Torrecillas mandataire indépendant en immobilier (sans détention de fonds), agent commercial de la SAS I@D France immatriculé au RSAC de LYON sous le numéro 978188571, titulaire de la carte de démarchage immobilier pour le compte de la société I@D France SAS.Informations LOI ALUR : Soumis au régime de copropriété. Nombre de lots : 321. Quote part annuelle(moyenne) : 1728 euros. Honoraires charge vendeur. (gedeon_6727_32657798)
- Type de bien : Appartement
- DPE : B - 51 à 90 kWh/².an
- GES : B - 6 à 10 kg eq CO2/².an
- Surface : 71 m²
- Localisation : France - Auvergne-Rhône-Alpes - Rhône
- Ville : Oullins
- Code postal : 69310
- Annonce créée le 16/04/2026





