Vente Appartement 94490, Ormesson-sur-Marne france 276 900 €
1 / 4
Descriptif du bien
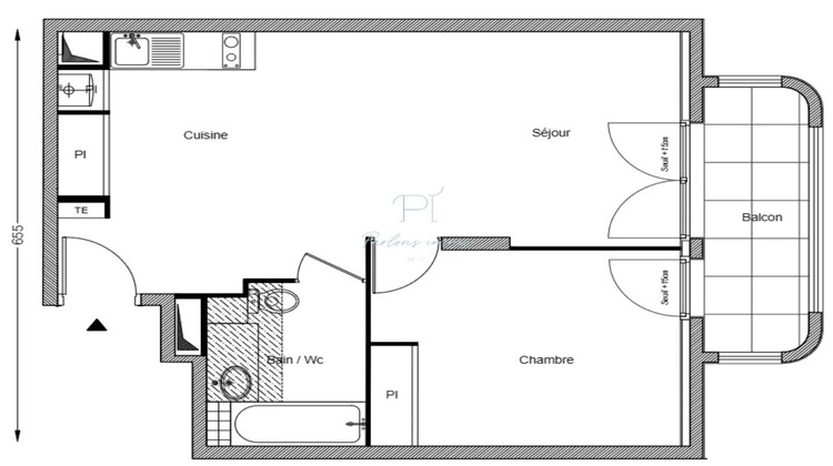
Nous vous proposons ce Grand 2 pièces de 46m2 très bien agencé au 2 ème étage d'un bâtiment de 3 étages.
Le Séjour Cuisine américaine de 28m2 donne accès à une une spacieuse Terrasse de 5.5 m2 pour profiter des beaux jours.
Situé dans un quartier résidentiel et recherché, cet appartement intègre Une place de parking, en sous sol sécurisé, Idéal Primo Accédant ou Investisseurs je suis à votre écoute pour répondre à vos questions.
Les informations sur les risques auxquels ce bien est exposé sont disponibles sur le site Géorisques : www.georisques.gouv.fr
Pour tous renseignements veuillez me contacter au 06 63 08 94 49 ou par email c.domingues@parlonsimmo.io
- Type de bien : Appartement
- GES : A -< 6 kg eq CO2/².an
- Surface : 46 m²
- Localisation : France - ile-de-france - Val de Marne
- Ville : Ormesson-sur-Marne
- Code postal : 94490
- Annonce créée le 05/11/2025



