Vente Appartement 35230, ORGERES france 201 000 €
Descriptif du bien
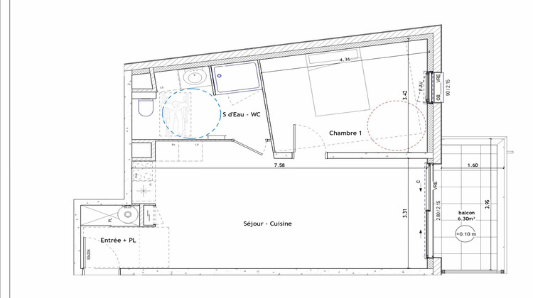
ORGÈRES - Appartement 2 pièces 48.66m² Sud-est - 2ème étage - ascenseur - balcon 6.30m² - stationnement en sous-sol sécurisé. Situé au sud de Rennes Métropole, sur la commune d'Orgères, découvrez cet appartement T2 de 48,66 m² à vendre, au 1er étage d'une résidence élégante avec ascenseur et accès sécurisé. Idéalement implantée, la résidence bénéficie d'un emplacement privilégié, à proximité immédiate des commerces, services et commodités, offrant un cadre de vie pratique et confortable au quotidien. Exposé plein sud-est, cet appartement lumineux se compose d'une entrée avec placard, d'un séjour-salon avec cuisine ouverte prolongé par un balcon de 6,30 m², d'une chambre confortable ainsi que d'une salle d'eau avec WC. Une place de stationnement sécurisée en sous-sol complète ce bien. Cet appartement à Orgères constitue une opportunité idéale pour un premier achat, un investissement locatif ou pour profiter d'un cadre de vie agréable à quelques minutes de Rennes. Prix promoteur - Frais de notaire réduits - Normes RT2020 Les informations sur les risques auxquels ce bien est exposé sont disponibles sur le site Géorisques : www.georisques.gouv.fr Copropriété de 17 lots - dont 15 lots habitation. (Pas de procédure en cours). Charges annuelles : 691 euros.
- Type de bien : Appartement
- Surface : 48 m²
- Localisation : France - Bretagne - Ile et Vilaine
- Ville : ORGERES
- Code postal : 35230
- Annonce créée le 17/02/2026


