Vente Appartement 35230, ORGERES france 207 000 €
Descriptif du bien
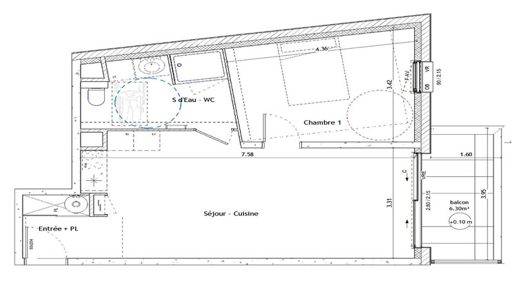
ORGÈRES - Appartement 2 pièces 48.66m² Sud - 2ème étage - ascenseur - balcon 6.30m² - stationnement en sous-sol sécurisé. Situé idéalement au sud de Rennes Métropole, sur la commune d'Orgères, découvrez cet appartement de 48.66m² au 2ème d'une résidence moderne avec ascenseur et accès sécurisé, à proximité immédiate des commerces et commodités. Orienté plein sud, cet appartement 2 pièces lumineux propose : Une entrée avec un placard, Un séjour avec cuisine ouverte, donnant accès au balcon de 6.30m². Une chambre, une salle d'eau avec wc. Une place de stationnement extérieure privative complète ce bien. Que vous soyez à la recherche d'un cadre de vie convivial ou d'un investissement durable, cette résidence allie confort et sérénité dans une commune où il fait bon vivre. Prix promoteur - Frais de notaire réduits - Normes RT2020 Les informations sur les risques auxquels ce bien est exposé sont disponibles sur le site Géorisques : www.georisques.gouv.fr Copropriété de 17 lots (Pas de procédure en cours). Charges annuelles : 691 euros.
- Type de bien : Appartement
- Surface : 48 m²
- Localisation : France - Bretagne - Ile et Vilaine
- Ville : ORGERES
- Code postal : 35230
- Annonce créée le 17/12/2024


