Vente Appartement 59310, ORCHIES france 187 600 €
Descriptif du bien
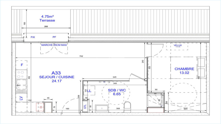
VEFA - Votre agence immobilière commercialise des appartements en état futur d'achèvement (livraison prévue avril 2027) dans une nouvelle résidence de seulement 28 logements, tous pourvus d'espaces extérieurs : terrasse, balcon ou jardin à Orchies, au coeur du secteur prisé de la Pévèle, à équidistance de Lille et Valenciennes (25 minutes en voiture, 16/18 minutes en train via la ligne directe de TER Lille Flandres - Valenciennes). Tous les logements que nous proposons à la vente dans le cadre de ce programme neuf sont des 2, 3 ou 4 pièces. Leur surface varie de 40 à 114 m2 avec espace extérieur de 4 à 20 m2. Prix : de 187 600 euros pour le T2 présenté sur cette annonce à 417 000 euros pour le plus grans appartament de cette nouvelle copropriété. L'appartement que nous vous présentons sur cette page comprend un salon / salle à manger / cuisine ouverte de 24 m2, une grande chambre de 13 m2 et une grande salle de bain avec baignoire et toilettes de 6,65 m2 + une terrasse. Pour en savoir plus sur cet appartement et les autres de ce programme, contactez ERA Agence de la Passerelle. Nous vous répondons 6 jours sur 7 de 8h00 à 20h00 sans interruption.
- Type de bien : Appartement
- Surface : 43 m²
- Localisation : France - Hauts-de-France - Nord
- Ville : ORCHIES
- Code postal : 59310
- Disponible le 01/04/2027
- Annonce créée le 19/08/2025








