Vente Appartement 85690, Notre-Dame-de-Monts france 151 000 €
Descriptif du bien
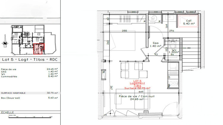
Iad France - Aurélien Joyeux vous propose : Derniers appartements à 150 m de l'océan
À deux pas de l'océan, découvrez cet appartement T1 bis entièrement rénové au sein de la Résidence de la Mer, en rue piétonne et à proximité immédiate des commerces.
prestations de qualité, cuisine aménagée, exposition sud, belle luminosité.
À 15 min de Noirmoutier, idéal pour un pied-à-terre ou un investissement locatif.
Plus que 2 appartements disponibles au RDC - Déficit foncier possible.
Contactez-moi rapidement.
La presente annonce immobiliere vise 2 lots situés dans une copropriété de 22 lots au total et ne faisant l'objet d'aucune procédure en cours citée à l'article L. 721-1 du code de la construction et de l'habitation. Montant moyen mensuel de charges déclaré par le vendeur : 50¤ par mois (soit 600 ¤ annuel). Honoraires d'agence à la charge du vendeur.
Information d'affichage énergétique sur ce bien : classe ENERGIE G indice 712 et classe CLIMAT C indice 22. Les informations sur les risques auxquels ce bien est exposé, y compris l'obligation légale de débroussaillement, sont disponibles sur le site Géorisques : http://www.georisques.gouv.fr.
La présente annonce immobilière a été rédigée sous la responsabilité éditoriale de M Aurélien Joyeux mandataire indépendant en immobilier (sans détention de fonds), agent commercial de la SAS I@D France immatriculé au RSAC de LA ROCHE SUR YON sous le numéro 100423086, titulaire de la carte de démarchage immobilier pour le compte de la société I@D France SAS.Informations LOI ALUR : Soumis au régime de copropriété. Nombre de lots : 22. Quote part annuelle(moyenne) : 600 euros. Honoraires charge vendeur. (gedeon_6727_32845131)
- Type de bien : Appartement
- DPE : G -> 450 kWh/².an
- GES : C - 11 à 20 kg eq CO2/².an
- Surface : 32 m²
- Localisation : France - pays-de-la-loire - Vendée
- Ville : Notre-Dame-de-Monts
- Code postal : 85690
- Annonce créée le 23/04/2026





