Vente Appartement 93160, Noisy-le-Grand france 189 000 €
Descriptif du bien
RER A au pied de l'immeuble Les Rives du Lac
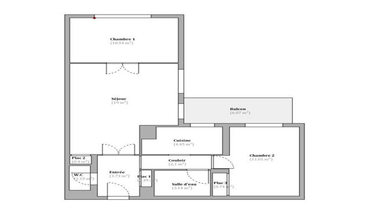
Appartement lumineux, avec terrasse, parking en sous-sol et prestations de standing. Résidence sécurisée avec gardiens, tennis, isolation récente et DPE C. Il se compose d'un séjour lumineux avec cuisine entièrement équipée, ouvrant sur une agréable terrasse de 6 m², de deux chambres, d'une salle d'eau, de WC séparés et d'un débarras privatif sur le palier.
Centre commercial, écoles et A4 à proximité immédiate.
Honoraires inclus de 5% TTC à la charge de l'acquéreur. Prix hors honoraires 180 000 . Dans une copropriété de 100 lots. Quote-part moyenne du budget prévisionnel 3 300 /an. Aucune procédure n'est en cours. Classe énergie C, Classe climat C Montant estimé des dépenses annuelles d'énergie pour un usage standard : entre 460.00 et 620.00 sur les années 2021, 2022 et 2023 (abonnements compris). Les informations sur les risques auxquels ce bien est exposé sont disponibles sur le site Géorisques : georisques.gouv.fr.
Votre conseiller COSTIER IMMOBILIER : Carlos RAMOS
Agent commercial (Entreprise individuelle)
RSAC 340186998 RSAC Créteil
RCP RCACO-25-031928 Galian
- Type de bien : Appartement
- DPE : C - 91 à 150 kWh/².an
- GES : C - 11 à 20 kg eq CO2/².an
- Surface : 56 m²
- Localisation : France - ile-de-france - Seine Saint Denis
- Ville : Noisy-le-Grand
- Code postal : 93160
- Annonce créée le 13/02/2026





