Vente Appartement 79000, NIORT france 339 000 €
1 / 4
Descriptif du bien
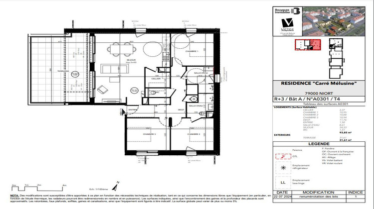
NIORT - Quartier Blauderie, dans Résidence neuve avec ascenseur, appartement T4 de 94 m² comprenant entrée, séjour/cuisine , cellier, 3 chambres dont une avec salle d'eau et wc, une deuxième salle d'eau, wc, grande terrasse de près de 32 m², 2 places de parking privatives. Chauffage individuel électrique. Belles prestations et quartier calme, bus de ville au pied de la résidence.
- Type de bien : Appartement
- Surface : 94 m²
- Localisation : France - Nouvelle-Aquitaine - Deux-Sèvres
- Ville : NIORT
- Code postal : 79000
- Annonce créée le 22/10/2024



