Vente Appartement 06200, Nice france 697 000 €
Descriptif du bien
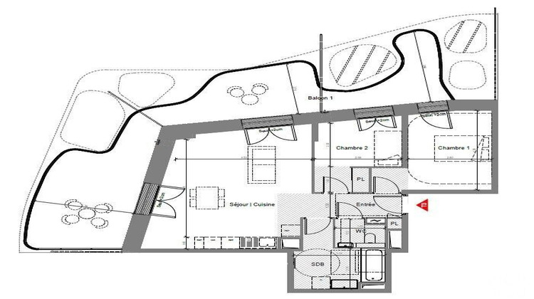
Iad France - Guillaume Sueur (06 10 35 64 71) vous propose : Dans l'environnement innovant et écoresponsable de Nice Éco-Vallée, magnifique appartement de 3 pièces de 69 m² environ vue mer, séjour et 2 chambres ouvrant sur 40 m² environ de terrasse, salle de bain et WC séparé.
Le chauffage et le rafraichissement d'air sont assurés par une centrale géothermique, l'électricité des parties communes est fournie par des panneaux solaires.
Vous apprécierez le confort de cet appartement domotisé au dernier étage d'un bâtiment luxueux, à l'architecture futuriste et aérienne et offrant des prestations haut de gamme, un appartement partagé et une salle de fitness.
Le stationnement est prévu avec un parking en sous-sol pouvant être équipé d'une borne de recharge.
Ce projet largement végétalisé bénéficie d'une remarquable centralité et d'une excellente accessibilité : Centre-ville et gare de Nice à 15 min en tramway et aéroport Nice Côte d'Azur à seulement 7 min en tramway.
PRODUIT EXCEPTIONNEL SUR LE MARCHE !
Honoraires d'agence à la charge du vendeur. Bien non soumis au DPE. Les informations sur les risques auxquels ce bien est exposé sont disponibles sur le site Géorisques : www.georisques.gouv.fr. La présente annonce immobilière a été rédigée sous la responsabilité éditoriale de M. Guillaume Sueur EI (ID 13733), mandataire indépendant en immobilier (sans détention de fonds), agent commercial de la SAS I@D France immatriculé au RSAC de GRASSE sous le numéro 808650865, titulaire de la carte de démarchage immobilier pour le compte de la société I@D France SAS.
Retrouvez tous nos biens sur notre site internet. www.iadfrance.fr.
Informations LOI ALUR :
Honoraires charge vendeur. (gedeon_6727_32539533)
- Type de bien : Appartement
- Surface : 62 m²
- Localisation : France - provence-alpes-cote-d-azur - Alpes Maritimes
- Ville : Nice
- Code postal : 06200
- Annonce créée le 05/02/2026





