Vente Appartement 06200, NICE france 289 500 €
Descriptif du bien
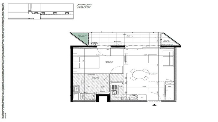
Appartement T2 Neuf Écoquartier Nice Méridia Situé au cœur du quartier innovant de Nice Méridia, au sein de la résidence emblématique OASIS, ce superbe T2 de standing offre un cadre de vie unique, à la fois contemporain, écologique et lumineux. L'appartement, orienté plein nord, se compose de : Un séjour spacieux prolongé par une cuisine ouverte, baigné de lumière grâce aux grandes baies vitrées orientées nord, Une chambre confortable avec placard intégré, Une salle d'eau moderne équipée d'une douche à l'italienne, Un balcon de 9 m2 offrant une vue dégagée sur les jardins paysagers de la résidence, Deux places de stationnement en sous-sol. La résidence OASIS, signée par des architectes de renom (KOZ, Comte & Vollenweider, S. Fernandez), se distingue par : Son architecture bois et verre résolument contemporaine, Des performances énergétiques élevées (certifications BBCA et HQE), Des espaces végétalisés en toiture et en façades, Une ambiance sereine et naturelle en pleine ville, Un emplacement idéal à proximité du tramway, de la future coulée verte et des services du quartier Grand Arénas. Arrêt « Méridia » de la nouvelle ligne T3 du tramway à 300 m* qui relie l'aéroport Nice Côte d'Azur au cœur historique de la ville Idéal pour un premier achat, un investissement locatif ou un pied-à-terre moderne à Nice. Contactez-nous pour visiter ce bien rare dans l'un des projets les plus innovants de la Côte d'Azur.
- Type de bien : Appartement
- DPE : A -< 51 kWh/².an
- Surface : 46 m²
- Localisation : France - provence-alpes-cote-d-azur - Alpes Maritimes
- Ville : NICE
- Code postal : 06200
- Annonce créée le 19/04/2025





