Vente Appartement 92200, NEUILLY-SUR-SEINE france 1 145 000 €
Descriptif du bien
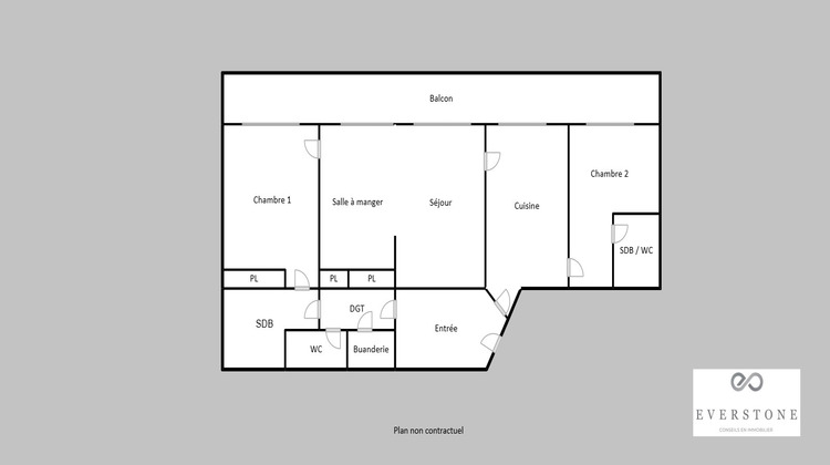
Neuilly-sur-Seine - Saussaye Au sein d'une résidence de standing parfaitement entretenue avec gardien, située au 3ème étage avec ascenseur, découvrez ce bel appartement 4 pièces de 91 m², apprécié pour sa luminosité, ses volumes harmonieux et son agencement fonctionnel. L'entrée mène à un vaste double séjour lumineux, ouvrant sur un large balcon au calme, offrant un véritable espace extérieur. La cuisine indépendante, entièrement aménagée et équipée, peut être ouverte sur le séjour, permettant de créer un espace de vie contemporain et convivial. L'espace nuit se compose de deux chambres, dont une suite avec salle d'eau et WC privatifs, d'une salle de bains, d'une buanderie ainsi que de toilettes indépendantes, assurant confort et fonctionnalité au quotidien. La configuration actuelle permet également la création d'une troisième chambre, selon les besoins. Une cave complète ce bien. Un box est proposé en supplément. Un appartement au plan optimisé, baigné de lumière, situé dans un environnement sécurisé et recherché, idéal pour une résidence principale familiale comme pour un pied-à-terre de qualité. A la recherche d'une expérience immobilière exceptionnelle, EVERSTONE vous propose un service entièrement personnalisé, adapté à vos besoins.
- Type de bien : Appartement
- DPE : D - 151 à 230 kWh/².an
- GES : D - 21 à 35 kg eq CO2/².an
- Surface : 91 m²
- Localisation : France - ile-de-france - Hauts de Seine
- Ville : NEUILLY-SUR-SEINE
- Code postal : 92200
- Annonce créée le 24/03/2026









