Vente Appartement 92200, NEUILLY-SUR-SEINE france 540 000 €
Descriptif du bien
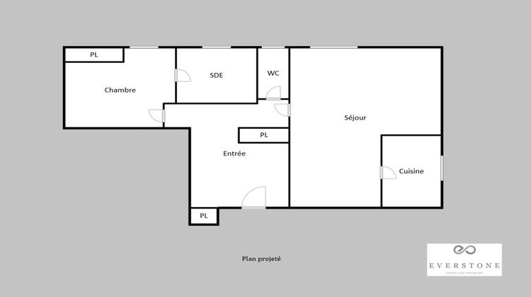
Neuilly, rue de la ferme , Idéalement situé à quelques minute du bois de Boulogne ce superbe 2 pièces de charme vous séduira par sa luminosité, son agencement optimal et son élégance. Niché au 3 -ème et dernier étage avec ascenseur d'un immeuble de standing parfaitement entretenu, il se compose d'une entrée, d'une cuisine indépendante, d'un séjour baigné de lumière grâce à une belle exposition ouest, d'une chambre au calme, d'une salle d'eau contemporaine et de WC séparés. L'appartement, en très bon état, ne nécessite aucun travaux. Il offre une atmosphère chaleureuse et raffinée, idéale pour une résidence principale, un pied-à-terre ou un investissement patrimonial. Une cave saine complète ce bien. En option : possibilité d'acquérir une place de parking
- Type de bien : Appartement
- DPE : E - 231 à 330 kWh/².an
- GES : E - 36 à 55 kg eq CO2/².an
- Surface : 54 m²
- Localisation : France - ile-de-france - Hauts de Seine
- Ville : NEUILLY-SUR-SEINE
- Code postal : 92200
- Annonce créée le 29/07/2025








