Vente Appartement 82800, Negrepelisse france 85 600 €
Descriptif du bien
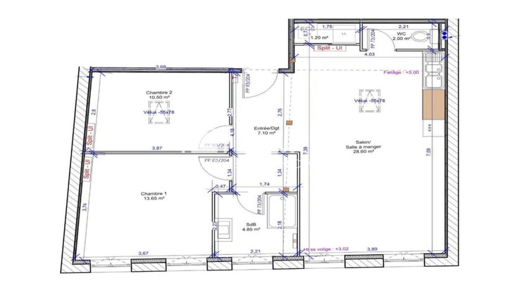
Cet appartement T3, de 68 m² environ, est idéalement situé en plein centre de NEGREPELISSE, village dynamique avec toutes les commodités (commerces; écoles; collège; services médicaux. ). Au 2eme étage sans ascenseur, il propose un pièce de vie de presque 30 m², 2 chambres de + de 13 et 10 m²; une salle d'eau et WC indépendant, offrant ainsi une belle opportunité, soit pour une résidence principale, soit pour un investissement locatif (rentabilité locative estimée entre 5,4 et 5,9%).L'immeuble, ancienne maison bourgeoise de charme, va bénéficier d'une réhabilitation complète (isolation thermique et phonique; charpente; maçonnerie. ) afin de proposer un projet sécurisé de qualité et ainsi vous offrir 2 options : - acquérir le plateau et vous réserver tout ou partie des travaux restants- acquérir le bien clé en main et prêt à vivre pour environ 130 000¤ (hors frais de notaire) Je me tiens à votre disposition avec un dossier et un descriptif complet afin de vous accompagner dans votre projet et étudier ensemble sa faisabilité. Le bien comprend 1 lot, et il est situé dans une copropriété de 7 lots (les charges courantes annuelles moyennes de copropriété sont de 444 ¤ et le syndicat des copropriétaires ne fait pas l'objet d'une procédure citée à l'article L. 721-1 du code de la construction et de l'habitation).Les informations sur les risques auxquels ce bien est exposé sont disponibles sur le site Géorisques : www.georisques.gouv.frPrix de vente : 85 600 ¤Honoraires charge vendeurContactez votre conseiller SAFTI : Isabelle BESSON DAUDUIT, Tél. : 07 83 13 93 56, E-mail : isabelle.besson@safti.fr - EI - Agent commercial immatriculé au RSAC de MONTAUBAN sous le numéro 883 044 638.Informations LOI ALUR : Soumis au régime de copropriété. Nombre de lots : 7. Quote part annuelle(moyenne) : 444 euros. Honoraires charge vendeur. (gedeon_26118_32930278)
- Type de bien : Appartement
- DPE : D - 151 à 230 kWh/².an
- GES : B - 6 à 10 kg eq CO2/².an
- Surface : 68 m²
- Localisation : France - Occitanie - Tarn et Garonne
- Ville : Negrepelisse
- Code postal : 82800
- Annonce créée le 26/03/2026


