Vente Appartement 44000, NANTES france 479 000 €
Descriptif du bien
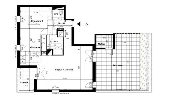
Nantes - Entre Erdre et La Loire - quartier Rond Point de Paris - Appartement 3 pièces 79.38m² Sud Est - dernier étage - ascenseur - terrasse 40m² - loggia 6.07m² - cellier - stationnement sécurisé. Dans un quartier dynamique à l'ambiance chaleureuse et préservée, offrant un cadre de vie idéal, entre la Loire et l'Erdre, la verdure, à proximité à pied : des restaurants, des services, piscine, écoles.. mais aussi des transports permettant de rejoindre très rapidement le centre-ville par le tramway, le bus, le chronobus, ou encore, à vélo.. proche d'un parc, dans une résidence de belle architecture aux dernières normes RT 2012, situé au dernier étage, bel appartement 3 pièces de 79.38m² aspecté Sud-Est avec ascenseur, comprenant : une entrée avec placard, séjour salon avec cuisine ouverte, accès sur une terrasse de 40m² avec cellier et une loggia de 6.07m², dégagement, deux chambres dont une avec placard, salle d'eau, wc indépendant. Stationnement en sous-sol sécurisé. Prix promoteur - frais de notaire réduits - Les informations sur les risques auxquels ce bien est exposé sont disponibles sur le site Géorisques : www.georisques.gouv.fr Copropriété de 39 lots (Pas de procédure en cours). Charges annuelles : 1137 euros.
- Type de bien : Appartement
- Surface : 79 m²
- Localisation : France - pays-de-la-loire - Loire Atlantique
- Ville : NANTES
- Code postal : 44000
- Annonce mise à jour le 24/12/2024


