Vente Appartement 44000, NANTES france 315 000 €
Descriptif du bien
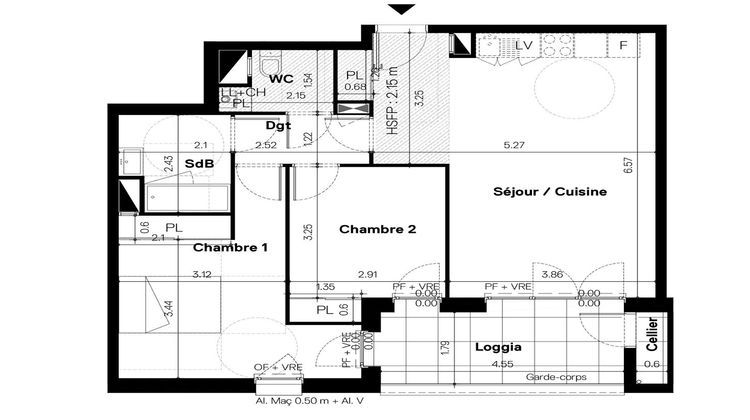
Nantes - Entre Erdre et La Loire - quartier Rond Point de Paris- Appartement 3 pièces 66.80m² Sud - 4ème étage - ascenseur - loggia 8.13m² - stationnement sécurisé. Dans un quartier dynamique à l'ambiance chaleureuse et préservée, offrant un cadre de vie idéal, entre la Loire et l'Erdre, la verdure, à proximité à pied : des restaurants, des services, piscine, écoles.. mais aussi des transports permettant de rejoindre très rapidement le centre-ville par le tramway, le bus, le chronobus, ou encore, à vélo.. proche d'un parc, dans une résidence de belle architecture aux dernières normes RT 2012, situé au 4ème étage, bel appartement 3 pièces de 66.80m² aspecté Sud avec ascenseur, comprenant : une entrée avec placard, séjour salon avec cuisine ouverte, accès sur une loggia 8.13m², dégagement, deux chambres avec placard, salle de bains, wc indépendant. Stationnement en sous-sol sécurisé. Prix promoteur - frais de notaire réduits - Les informations sur les risques auxquels ce bien est exposé sont disponibles sur le site Géorisques : www.georisques.gouv.fr Copropriété de 39 lots (Pas de procédure en cours). Charges annuelles : 1000 euros.
- Type de bien : Appartement
- Surface : 66 m²
- Localisation : France - pays-de-la-loire - Loire Atlantique
- Ville : NANTES
- Code postal : 44000
- Annonce mise à jour le 24/12/2024


