Vente Appartement 44000, NANTES france 387 000 €
Descriptif du bien
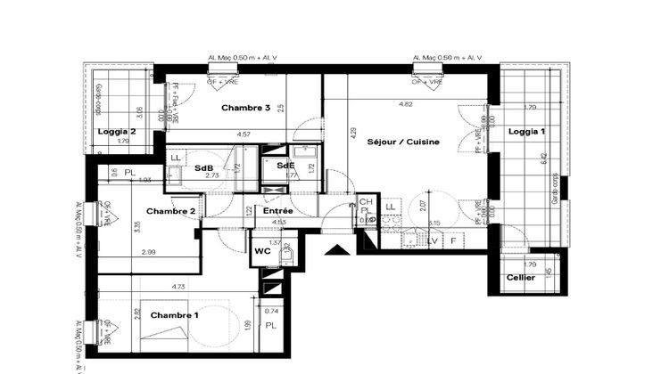
Nantes - quartier Rond Point de Paris - Appartement 4 pièces 81.67m² Sud Est - 2ème étage - ascenseur - loggias 16.92m² - stationnement sécurisé. Dans un quartier dynamique à l'ambiance chaleureuse et préservée, offrant un cadre de vie idéal, entre la Loire et l'Erdre, la verdure, à proximité à pied : des restaurants, des services, piscine, écoles.. mais aussi des transports permettant de rejoindre très rapidement le centre-ville par le tramway, le bus, le chronobus, ou encore, à vélo.. proche d'un parc, dans une résidence de belle architecture aux normes RT 2012, situé au 2ème étage, bel appartement 4 pièces de 81.67m² traversant aspecté Sud Est avec ascenseur, comprenant : une entrée avec placard, séjour salon avec cuisine ouverte, accès sur une loggia 11.46m² avec cellier de 2.60m², trois chambres dont deux avec placard et une avec loggia de 5.46m², salle d'eau, salle de bains, wc indépendant. Stationnement en sous-sol sécurisé. Prix promoteur - frais de notaire réduits - Les informations sur les risques auxquels ce bien est exposé sont disponibles sur le site Géorisques : www.georisques.gouv.fr Copropriété de 39 lots (Pas de procédure en cours). Charges annuelles : 1166 euros.
- Type de bien : Appartement
- Surface : 81 m²
- Localisation : France - pays-de-la-loire - Loire Atlantique
- Ville : NANTES
- Code postal : 44000
- Annonce mise à jour le 24/12/2024


