Vente Appartement 92000, NANTERRE france 557 000 €
Descriptif du bien
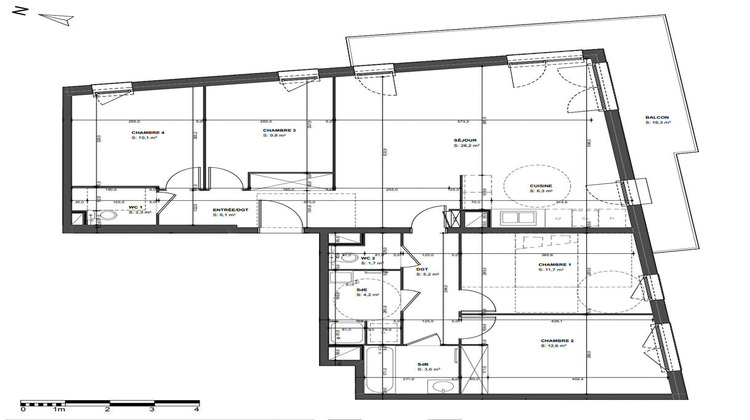
Dans un quartier résidentiel, à proximité du parc André Malraux et non loins de la Défense, superbe appartement familial de 101,80 m2 en étage élevé au sein d'une résidence moderne et sécurisée. Cet appartement traversant, en parfait état vous offre une entrée avec rangements, un séjour de 34,50 m2 ouvrant sur un balcon de 16 m2 qui profite d'une double exposition Est/ Ouest, une cuisine US équipée, quatre chambres profitants de rangements, une salle de bains, une buanderie (poss seconde salle de bains) et un WC indépendant. Une place de parking en sous sol de l'immeuble complète ce bien. Appartement lumineux, sans perte de placeA noter qu'il est possible d'ouvrir l'une des chambres sur le living pour un double séjour. (3.72 % honoraires TTC à la charge de l'acquéreur.) Jeanne ALFORT (EI) Agent Commercial - Numéro RSAC : - .
- Type de bien : Appartement
- Surface : 101 m²
- Localisation : France - ile-de-france - Hauts de Seine
- Ville : NANTERRE
- Code postal : 92000
- Annonce créée le 11/03/2025









