Vente Appartement 54000, Nancy france 197 785 €
1 / 4
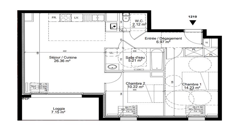
Descriptif du bien
Au nord de Nancy, proche de toutes les commodités, établissements scolaires, établissements de santé et des transports en commun.
Venez découvrir dans une belle résidence neuve, un appartement de 65m2 au 1er étage desservi par un ascenseur
Composé d'une entrée avec placard, 2 chambres de 14 et 10m2, un WC séparé, une salle de bains, et une belle pièce de vie de 26m2 avec cuisine ouverte et accès sur une loggia de 7m2.
L'appartement est vendu avec 1 parking.
Prix en TVA 5.5%
- Type de bien : Appartement
- Surface : 65 m²
- Localisation : France - Grand Est - Meurthe et Moselle
- Ville : Nancy
- Code postal : 54000
- Annonce mise à jour le 02/10/2024



