Vente Appartement 76710, Montville france 338 000 €
Descriptif du bien
Montville - Livré au 2ème trimestre 2025 ! Avec des prix allant de 170000EUR jusqu'à 340000EUR, ce programme offre une gamme complète d'appartements pour répondre à tous vos besoins et budgets.
Les appartements disposent de surfaces allant de 39,55m2 jusqu'à 93,55m2, avec des agencements intelligents et des prestations de qualité. Le programme est éligible Pinel, offrant une opportunité unique pour les investisseurs cherchant à bénéficier d'avantages fiscaux.
Situé à seulement 12 minutes de Rouen, ce programme bénéficie d'un emplacement idéal dans un quartier paisible et verdoyant, avec des espaces extérieurs magnifiques. Vous pourrez profiter d'un cadre de vie agréable et serein tout en restant proche des commodités de la ville. Le programme dispose d'un parking en sous-sol pour faciliter votre quotidien.
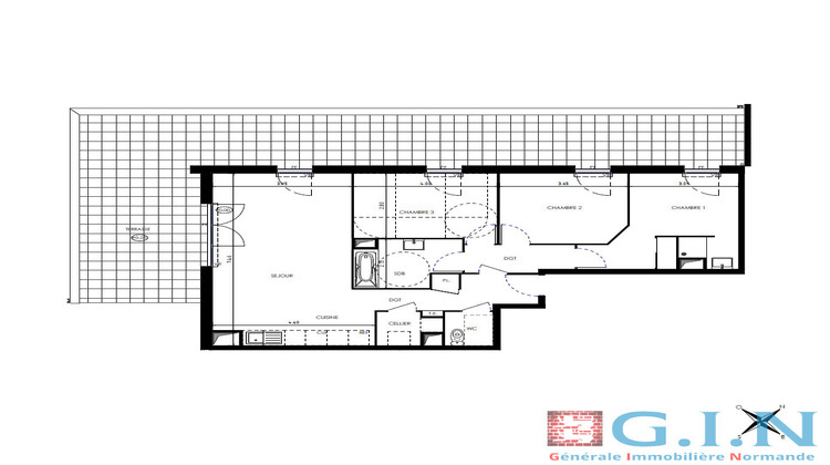
L'appartement présenté sur les plans est un appartement 4 pièces de 86.35m2 exposée Sud/Ouest, située au 3 étages avec terrasse de 62.9m2. Composée de trois chambres ( 10.90m2, 11.65m2, 14.15m2 ), d'un séjour avec cuisine ouverte de 30.5m2 et de deux places parking de parking couvert.
Agent commercial Olivier MALHOUITRE ADC 7606- 2018 - 000 133 060 Mob. 06-38-81-35-85. Sous la carte professionnelle No : CPI 7606 2022 000 000 016
- Type de bien : Appartement
- Surface : 86 m²
- Localisation : France - Normandie - Seine Maritime
- Ville : Montville
- Code postal : 76710
- Annonce créée le 26/03/2025



