Vente Appartement 92120, Montrouge france 790 000 €
Descriptif du bien
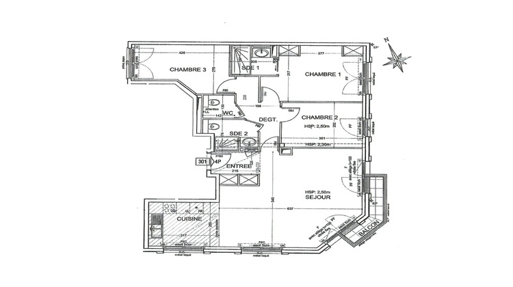
Le réseau éthique DOMINI représenté par CHRISTIAN GEZGINCI, vous présente en EXCLUSIVITÉ avenue de la RÉPUBLIQUE, sud, dans un immeuble de 2022, un APPARTEMENT 4 PIÈCES de 88,22m2 en superficie Carrez, au 3ème étage, avec ascenseur, disposé comme suit :
Un séjour/Cuisine de 41,9m2 avec 1 balcon
Une première chambre de 10,87m2
Une deuxième chambre de 13,49m2
Une troisième chambre de 9m2
Une 1ère salle d'eau avec WC de 3,03m2
Une 2ème salle d'eau de 3,08m2
Des WC indépendants de 1,63m2
Un couloir de 5,25m2
Ainsi qu'une place de parking en amodiation dans un parking sécurisé exploité par Indigo Group complète ce bien (contrat en cours d'une durée de 10 ans).
Enfin, ce bien vous est proposé avec sa CUISINE ÉQUIPÉE AMÉNAGÉE.
Disposition : Le séjour, ainsi que deux chambres sont orientés sur rue, la 3ème chambre côté cour.
- Triple exposition : SUD/OUEST/EST
Le séjour : SUD/EST, 1ère et 2ème chambre : EST, 3ème chambre : OUEST
- DPE : C
- Chauffage collectif au gaz.
- Charges courantes prévisionnelles : environ 330/mois soit 3 960 à l'année (chauffage, eau chaude inclus).
- Taxe foncière : 1 214
- À proximité de : Métro Ligne 4 station Barbara
Appartement soumis au statut de la copropriété.
- Nombre total de lots : 16 / nombre de lots d'habitation : 11. Pas de procédures en cours relative aux copropriétés en difficulté.
PRIX DE VENTE : 790 000 euros honoraires inclus
Prix net vendeur : 780 000 euros
Honoraires d'agence à la charge de l'acquéreur : 1,28% TTC
Consulter nos tarifs sur le site de DOMINI IMMOBILIER.
Honoraires inclus de 1.28% TTC à la charge de l'acquéreur. Prix hors honoraires 780 000 . Dans une copropriété de 16 lots. Aucune procédure n'est en cours. Classe énergie C, Classe climat C Montant moyen estimé des dépenses annuelles d'énergie pour un usage standard, établi à partir des prix de l'énergie de l'année 2021 : entre 408.00 et 552.00 . Les informations sur les risques auxquels ce bien est exposé sont disponibles sur le site Géorisques : georisques.gouv.fr.
Votre conseiller Domini : Christian Gezginci
Agent commercial (Entreprise individuelle)
RSAC 752 168 500
- Type de bien : Appartement
- DPE : C - 91 à 150 kWh/².an
- GES : C - 11 à 20 kg eq CO2/².an
- Surface : 88 m²
- Localisation : France - ile-de-france - Hauts de Seine
- Ville : Montrouge
- Code postal : 92120
- Annonce créée le 20/02/2026



