Vente Appartement 34990, JUVIGNAC france 89 000 €
Descriptif du bien
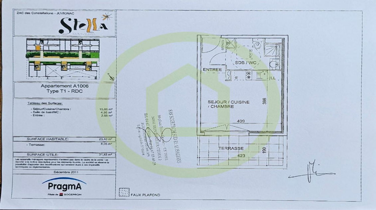
Exclusivité - Juvignac, aux portes de Montpellier et à quelques pas du Tramway (ligne 3) et des commerces. Situé en rez-de-chaussée d'une résidence récente et encore sous garantie décennale, ce studio de 24m², était loué 456€ charges comprises (peut monter à 500€ environ) et représente une belle opportunité d'investissement locatif. Composé d'une grande entrée avec rangement de 5m², d'un séjour/cuisine équipé de presque 16m² et d'une salle d'eau de 5m². Vendu avec une place de parking en sous-sol. Pour visiter et vous accompagner dans votre projet, contactez David PEROT au 06 27 47 38 47 Prix de vente 89 000 €. Honoraires : 8,54% TTC inclus charge acquéreur (82 000 € hors honoraires) Selon l'article L.561.5 du Code Monétaire et Financier, pour l'organisation de la visite, la présentation d'une pièce d'identité vous sera demandée. Les informations sur les risques auxquels ce bien est exposé sont disponibles sur le site Géorisques : www.georisques.gouv.fr Cette présente annonce a été rédigée sous la responsabilité éditoriale de David PEROT agissant sous le statut d'agent commercial immatriculé au Ville du greffe : MONTPELLIER sous le numéro RSAC N° 837 492 347 auprès de la SAS IMMO RESEAU au capital de 10 000€ - Réseau national immobilier sur internet, 44 Allée des Cinq Continents - 44120 VERTOU - RNE NANTES 519 718 886. Carte professionnelle T et G n° CPI 3002 2018 000 024 971 CCI de Nantes-Saint-Nazaire (44) ; Garantie par GALIAN – 89 rue de la Boétie - 75008 Paris N°171379G pour 120 000€ pour T. Assurance responsabilité civile professionnelle par GALIAN n° de police 120 137 405 (réf. 32443) - Le professionnel garantit et sécurise votre projet immobilier Prix de vente 89 000 €. Honoraires : 8,54% TTC inclus charge acquéreur (82 000 € hors honoraires) Montant estimé des dépenses annuelles d'énergie pour un usage standard : entre 250 € et 420 € par an. Prix moyens des énergies indexés au 01/01/2021 (abonnement compris). DPE : B GES : B

