Vente Appartement 34070, Montpellier france 159 000 €
Descriptif du bien
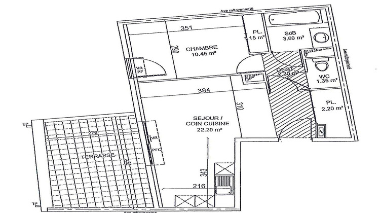
Montpellier Croix d'Argent joli Type 2 de 43.25 m2 hab au 2eme étage d'une résidence récente et sécurisée proche de toutes les commodités, ce T2 bénéficie également d'un garage en sous-sol.
T2 composé d'une entrée, d'une jolie pièce de vie lumineuse, d'une cuisine us aménagée et semi équipée, d'une salle d'eau, d'un wc et d'une chambre avec placard. Garage en sous-sol.
Bien en copropriété, pas de procédures en cours, prix de vente 159 000 HAI les honoraires d'agence sont à la charge du vendeur. 'Les informations sur les risques auxquels ce bien est exposé sont disponibles sur le site Géorisques : www.georisques.gouv.fr'
Honoraires à la charge du vendeur. Dans une copropriété de 80 lots. Quote-part moyenne du budget prévisionnel 1 000 /an. Aucune procédure n'est en cours. Classe énergie C, Classe climat B Montant moyen estimé des dépenses annuelles d'énergie pour un usage standard, établi à partir des prix de l'énergie de l'année 2022 : entre 350.00 et 700.00 . Les informations sur les risques auxquels ce bien est exposé sont disponibles sur le site Géorisques : georisques.gouv.fr.





