Vente Appartement 34070, Montpellier france 250 000 €
Descriptif du bien
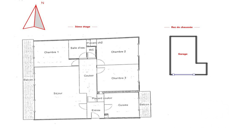
Iad France - Pascale Lavaysse vous propose : Montpellier, à 2 pas des Arceaux et de l'avenue de Lodève, venez découvrir ce superbe appartement T4 traversant (possibilité T5) de 87.20 m², niché au 3ème étage avec ascenseur d'une résidence sécurisée, calme et arborée avec gardien. Bénéficiant d'une double exposition est-ouest, il offre une spacieuse pièce de vie de 28 m² ouvrant sur une agréable terrasse d'environ 11 m². Possibilité de créer une 4ème chambre en utilisant une partie du double salon. Bonne rentabilité dans le cadre d'une colocation. Sa cuisine équipée, fonctionnelle et conviviale, se prolonge par une loggia fermée, idéale pour un espace buanderie ou de rangement. Côté nuit, vous trouverez 3 belles chambres, une salle d'eau récente et un WC indépendant. Aucun travaux à prévoir, vous n'aurez plus qu'à poser vos valises ! Un grand garage fermé de près de 16 m² avec sa porte motorisée et des rangements intégrés vient compléter ce bien. La résidence dispose également de nombreuses places de stationnement libres ainsi que d'un local à vélos. Son emplacement privilégié permet un accès rapide au tramway ligne 3 station Arceaux ainsi qu'aux écoles, collège et lycée à proximité immédiate. La presente annonce immobiliere vise 2 lots situés dans une copropriété de 298 lots au total et ne faisant l'objet d'aucune procédure en cours citée à l'article L. 721-1 du code de la construction et de l'habitation. Montant moyen mensuel de charges déclaré par le vendeur : 190.67¤ par mois (soit 2288 ¤ annuel). Honoraires d'agence à la charge du vendeur. Information d'affichage énergétique sur ce bien : classe ENERGIE C indice 153 et classe CLIMAT C indice 25. Les informations sur les risques auxquels ce bien est exposé, y compris l'obligation légale de débroussaillement, sont disponibles sur le site Géorisques : http://www.georisques.gouv.fr.La présente annonce immobilière a été rédigée sous la responsabilité éditoriale de Mme Pascale Lavaysse mandataire indépendant en immobilier (sans détention de fonds), agent commercial de la SAS I@D France immatriculé au RSAC de MONTPELLIER sous le numéro 335150892, titulaire de la carte de démarchage immobilier pour le compte de la société I@D France SAS.Informations LOI ALUR : Soumis au régime de copropriété. Nombre de lots : 298. Quote part annuelle(moyenne) : 2288 euros. Honoraires charge vendeur. (gedeon_6727_32258800)





