Vente Appartement 34000, MONTPELLIER france 569 000 €
Descriptif du bien
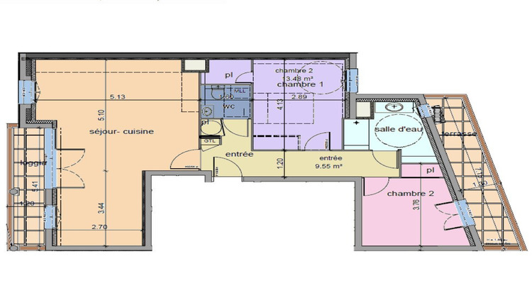
L'agence Casanova vous presente dans l'un des quartier les plus recherchés de Montpellier, au coeur des Arceaux à proximité immédiate de la place Max Rouquette et des jardins du Peyrou, ce superbe appartement T3 de 75m2. A deux pas de toutes les commodités (commerces,bus,école, pharmacie, marché..) ce bien offre un cadre de vie privilégié alliant standing et vue remarquable. L'appartement se compose d'une grande entrée d'un séjour cuisine, ouvrant sur une terrasse avec vue sur les Arceaux. L'espace nuit comprend: Une première chambre avec dressing, une seconde chambre avec placard bénéficiant d'une vue sur le chateau d'eau du Peyrou, monument historique emblématique. Une salle d'eau haut de gamme, des WC séparés, ainsi que deux terrasses viennent parfaire ce bien rare. Prestations complémentaires: Ascenseur Local Vélo Place de stationnement privative Finitions et matériaux de qualité Un appartement de standing rare sur le secteur. Visite sur demande Contact: Marie-Lisette 0767417047 La résidence bénéficie de belles prestations: Isolation phonique et thermique Résidence avec ascenseur Local vélo Un bien rare dans un secteur prisé Visite privée sur demande Contact Marie-Lisette 0767417047





