Vente Appartement 34000, Montpellier france 217 000 €
Descriptif du bien
Au coeur du quartier Lemasson, à Montpellier, face au stade Sabathé et à quelques pas de la mairie de proximité, découvrez un lieu de vie idéalement situé, à seulement 450 mètres des lignes 2 et 4 du tramway (arrêt Nouveau Saint-Roch).
Ce secteur dynamique et en pleine évolution vous permet de rejoindre facilement la gare, les universités ou encore la place de la Comédie à 15 minutes à pied, tout en profitant du calme d'un quartier résidentiel.
Dans une petite copropriété intimiste de seulement 13 logements, plusieurs appartements bien pensés sont disponibles, du studio au 4 pièces en duplex.
Que vous cherchiez à poser vos valises ou à réaliser un investissement patrimonial, vous serez séduit par la qualité des finitions, les volumes lumineux et les espaces extérieurs balcon, terrasse ou jardin qui prolongent chaque logement. Une belle opportunité de devenir propriétaire dans un cadre moderne, serein et parfaitement connecté au reste de la ville.
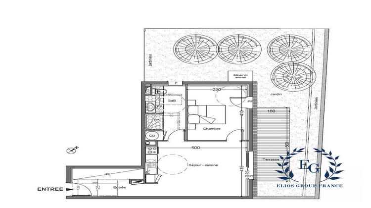
Ce beau T2 de 48 m² habitables s'ouvre sur une pièce de vie spacieuse et lumineuse de près de 20 m² avec cuisine ouverte, et se prolonge vers l'extérieur avec une terrasse de 13 m² donnant sur un jardin privatif de 40 m², parfait pour profiter des beaux jours ou recevoir entre amis. La chambre, au calme, dispose d'un placard intégré, et la salle de bain, généreuse, atteint près de 8 m². Chaque détail a été pensé pour optimiser le confort quotidien.
L'appartement est vendu avec un garage fermé en sous sol avec point lumineux et prise électrique.
Contactez nous dès maintenant pour en savoir plus sur les lots disponibles.
Honoraires à la charge du vendeur. Dans une copropriété de 31 lots. Quote-part moyenne du budget prévisionnel 980 /an. Aucune procédure n'est en cours. Non soumis au DPE. Les informations sur les risques auxquels ce bien est exposé sont disponibles sur le site Géorisques : georisques.gouv.fr.
Votre conseiller ELIOS GROUP IMMOBILIER : Emilie BARRA
Agent commercial (Entreprise individuelle)
RSAC 943 138 784.
Les informations sur les risques auxquels ce bien est exposé sont disponibles sur le site Géorisques : www.georisques.gouv.fr



