Vente Appartement 03100, MONTLUCON france 85 000 €
Descriptif du bien
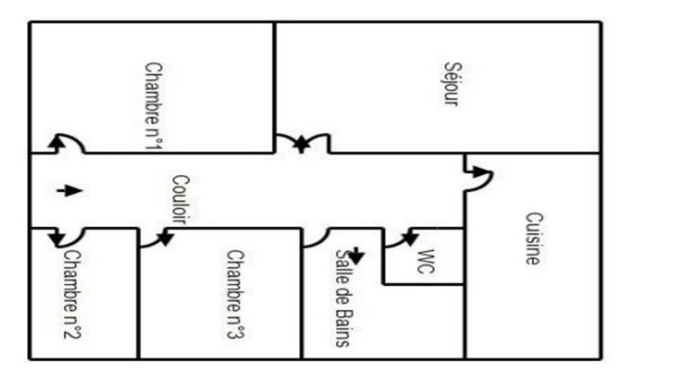
Dans une petite copropriété de deux logements ce joli appartement de 125 m2 possède tous les avantages d'un logement de ville. Lumineux et spacieux le séjour de 40 m2 semble presque démesuré en totalisant à lui seul un tiers de la surface plancher. Trois chambres de bonne dimensions, elles aussi éclairées et une cuisine équipée de bon gout. au sous sol, vous trouverez un grand garage et une cave ainsi qu'un accès commun à la chaufferie. Terrain sur l'avant comme sur l'arrière le lieu est tranquille et apaisant. Les transports en commun sont à proximité ainsi que les commerces de grande distribution. Pas ou peu de charges communes, chaque occupant nettoie la surface qui lui est attribué. Bon voisinnage. Possibilité d'acquérir l'ensemble l'autre partie étant également en vente sous la référence 907158 Nombre de lots de la copropriété : 8, Montant moyen annuel de la quote-part de charges (budget prévisionnel)(0) : 0€ soit 0€ par mois. Les honoraires sont à la charge du vendeur. Les informations sur les risques auxquels ce bien est exposé sont disponibles sur le site Géorisques : www. georisques. gouv. fr. Réseau Immobilier CAPIFRANCE - Votre agent commercial (RSAC N°353 728 280 - Greffe de MONTLUCON) Henri AUBRET Entrepreneur Individuel 06 08 33 14 96 - Réf.907796
- Type de bien : Appartement
- DPE : E - 231 à 330 kWh/².an
- GES : E - 36 à 55 kg eq CO2/².an
- Surface : 126 m²
- Localisation : France - Auvergne-Rhône-Alpes - Allier
- Ville : MONTLUCON
- Code postal : 03100
- Annonce mise à jour le 08/11/2025



