Vente Appartement 40000, Mont-de-Marsan france 69 000 €
Descriptif du bien
Iad France - Christel Lajous vous propose : EXCLUSIVITÉ - MONT DE MARSAN Hyper centre - IDEAL INVESTISSEUR - Appartement T3 à rénover de 64 m² avec une grande terrasse intérieure à la petite copropriété de deux lots, aux faibles charges. Idéal pour votre projet d'investissement locatif ou d'habitation.
Et comme toutes mes exclusivités, ouverte au partage avec mes confrères !
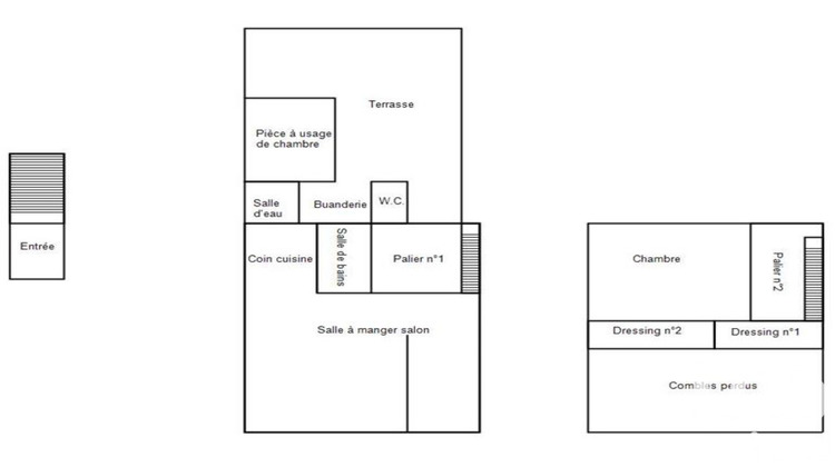
Au cOEur de Mont de Marsan, découvrez cet appartement T3 atypique à rénover.
Son entrée indépendante, située en rez-de-chaussée d'une rue à sens unique peu passante, mène à un 1er étage dédié à la pièce de vie avec cuisine semi ouverte, salle de bains et WC, chambre et salle d'eau ouvertes sur la grande terrasse semi couverte
Le 2eme et dernier étage offre une 2eme chambre et combles aménageables en dressing.
Petite copropriété de deux lots aux faibles charges, avec un local professionnel sans aucune nuisances en rez-de-chaussée.
Nombreux parking, services et commerces à deux pas.
Eligible au DISPOSITIF DENORMANDIE et aux aides à la rénovation énergétique (DPE G).
La presente annonce immobiliere vise 1 lot situé dans une copropriété de 1 lot au total et ne faisant l'objet d'aucune procédure en cours citée à l'article L. 721-1 du code de la construction et de l'habitation. Montant moyen mensuel de charges déclaré par le vendeur : 10¤ par mois (soit 120 ¤ annuel). Honoraires d'agence à la charge du vendeur.
Information d'affichage énergétique sur ce bien : classe ENERGIE G indice 554 et classe CLIMAT C indice 18. Les informations sur les risques auxquels ce bien est exposé, y compris l'obligation légale de débroussaillement, sont disponibles sur le site Géorisques : www.georisques.gouv.fr.
La présente annonce immobilière a été rédigée sous la responsabilité éditoriale de Mme Christel Lajous mandataire indépendant en immobilier (sans détention de fonds), agent commercial de la SAS I@D France immatriculé au RSAC de MONT-DE-MARSAN sous le numéro 984780775, titulaire de la carte de démarchage immobilier pour le compte de la société I@D France SAS.
Informations LOI ALUR :
Soumis au régime de copropriété.
Nombre de lots : 1.
Quote part annuelle(moyenne) : 120 euros.
Honoraires charge vendeur. (gedeon_6727_30601849)
- Type de bien : Appartement
- DPE : G -> 450 kWh/².an
- GES : C - 11 à 20 kg eq CO2/².an
- Surface : 73 m²
- Localisation : France - Nouvelle-Aquitaine - Landes
- Ville : Mont-de-Marsan
- Code postal : 40000
- Annonce mise à jour le 11/09/2025





