Vente Appartement 38430, Moirans france 225 000 €
Descriptif du bien
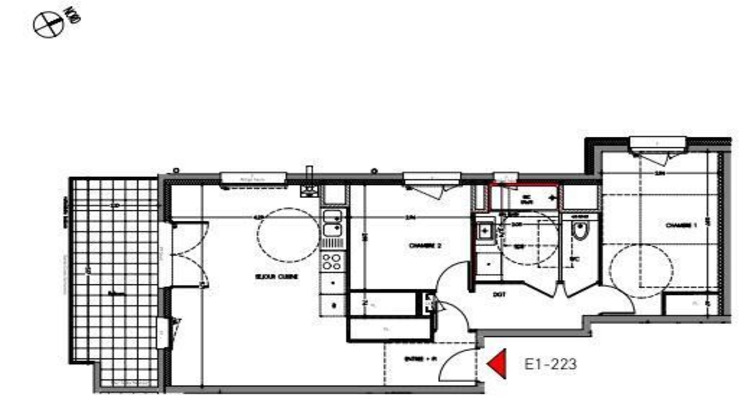
Iad France - Marie-Rose Gilles (06 98 85 33 80) vous propose : Beau t3, neuf, exposé Sud-Ouest, au coeur d'une résidence sécurisée aux prestations de standing. Vous bénéficiez des frais de notaire réduits (environ 2,5%).
Grand balcon pour déjeuner ou diner de 12 m² environ.
Emplacement privilégié pour profiter des avantages de la ville tout en bénéficiant d'un cadre verdoyant et calme.
La résidence est située à proximité des grands axes routiers, de la gare, des commerces et des écoles.
Ainsi Grenoble et Voiron sont à 25 / 30 min en train.
Garage possible en sus du prix.
D'autres t3 disponibles, de 225 000¤ à 229 000¤, de 65 m² environ à 68 m² environ, du RDC au troisième étage.
Me contactez pour toute information complémentaire et / ou visite.
Honoraires d'agence à la charge du vendeur. Bien non soumis au DPE. Les informations sur les risques auxquels ce bien est exposé sont disponibles sur le site Géorisques : www.georisques.gouv.fr. La présente annonce immobilière a été rédigée sous la responsabilité éditoriale de Mlle Marie-Rose Gilles EI (ID 83761), mandataire indépendant en immobilier (sans détention de fonds), agent commercial de la SAS I@D France immatriculé au RSAC de GRENOBLE sous le numéro 478110612, titulaire de la carte de démarchage immobilier pour le compte de la société I@D France SAS.
Retrouvez tous nos biens sur notre site internet. www.iadfrance.fr.
Informations LOI ALUR :
Honoraires charge vendeur. (gedeon_6727_32191390)
- Type de bien : Appartement
- Surface : 64 m²
- Localisation : France - Auvergne-Rhône-Alpes - Isère
- Ville : Moirans
- Code postal : 38430
- Annonce créée le 18/12/2025


